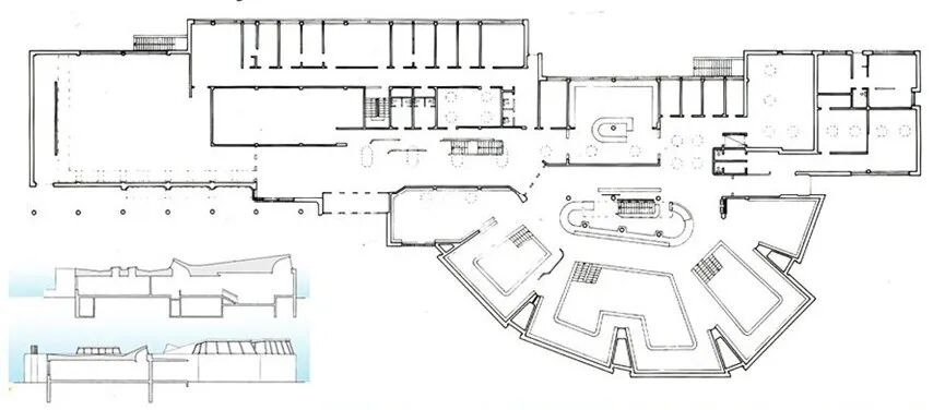
最新文章2023-07-02 阿尔瓦·阿尔托:诗意地栖居 阿尔托曾说,“艺术中只有两种情况,富有人性化和缺乏人性化。”他给予罗瓦涅米的正是前者。“诗意的栖居”是一种人自由存在的状态, 是人与自然诗意的融合状态,阿尔托正是以自然为主体,塑造一种给人温暖感受的诗意栖居环境。 01 天使山修道院图书馆,美国 诗意的景观 天使山修道院图书馆反映并表明了委托人的精神和理念:建造一座图书馆,将阅读的愉悦与学习的效率联系起来。 该图书馆提供了访问范围广泛的书籍和其他资料的大集合。该图书馆对客人、访问学者和公众开放,是西北太平洋地区最重要的神学图书馆之一。 图书馆大楼位于修道院所在山丘的北侧,从正门看去,这座建筑显得小巧且不张扬,仿佛消失在周围的建筑中。 图书馆外部四周有移植过来的树木,尽管该馆位于长满树木的山坡上,但独特的地理位置并未使设计师担心视野的问题:设计师非常巧妙地将阅览室设计在有利的位置,这样读者就不会受到干扰。 建筑以戏剧性的方式在水平和垂直方向上扩展:建筑物呈不对称的扇形,从大厅向外辐射到图书馆的后墙,并向下延伸到四层,以平整的面直至山下。扇形的后部设有大型落地窗,高处上方是中央空间,周围是天窗。 “诗意”的生活:自然光的采集和利用 图书馆中有三个自然光充足的阅览室,设计师在设计时巧妙的将阅览区布置于靠窗一侧及靠天窗一侧,书库布置于空间中部。 阅览区通过高差处理形成一个相对封闭的空间,营造相对独立和安静的氛围。 02 洛瓦涅米图书馆,芬兰 空间体系 建筑师借助古代露天剧场的母题,采取扇形的平面布局,将其比喻为一部翻开的书籍,它的体型低缓,尺度适宜,简洁的前部入口之上有着宽大舒展的檐廊,在外立面上形成连续性和统一感。 平面图中,沿扇形排列三处环形围合区域,是三个各自独立的下沉阅览区。它们共同指向的圆心,是图书借还处。 整个平面布局开放。从借还处可以轻松总览整个扇形空间。工作人员保持距离温和地监视,读者在阅读区中沉浸、自由。 自然光的采集和利用 丹麦皇家艺术学院的学者对洛瓦涅米图书馆的自然光做了数据分析,颜色越浅表示越多自然光。 光,是了解北欧各国经济、社会和文化的重要对象,人们活动的方式和物质形态的设计都是以光作为背景。 阿尔托善于处理建筑材料、光和空间,他认为建筑师的工作之一是要给予生活更加精良的建筑。 在这座建筑内,室内折面内壁带有白色的高窗,经过天花弧线造型,漫反射的自然光落在主楼层的书架上,再逐渐落入下沉区,为阅读提供柔和的自然光环境。 下沉区桌上另设台灯,用人工照明补光。 室内的家具、壁面和楼梯等全部为木制材料,形成了亲切自然、明快素雅的阅览环境。 03 维堡图书馆,俄罗斯 图书馆的三层是图书馆主要使用空间和阅览室平面,该层的标高有三种,最高层是一个借换的服务台。 这与其他很多图书馆服务台从属于服务性质的入口有很大不同,在这里,服务台所在的大平台整体抬高,是整个空间的核心。 他用不同的标高近乎均等的划分了平面,在两侧用楼梯相连接,仅有一根栏杆划分出控制点的内与外。搜寻图书的读者可以沿着周边寻找,或下到凹井中,在高处或低处的空间坐下来阅读。 阿尔瓦阿尔托仔细勾勒着采光对阅读和取阅图书的影响,也使圆形的天窗成为很经典的采光形式。 当太阳光被反射进房间时,光筒极为引人注目,切断了阳光直射的路径,一整天都可如此,因为圆形的形状适应了太阳变换的角度。 可以看到光线在室内的柔和感受,反射让原本凌冽的光线仿佛“丝般顺滑”。 参考文章 1.https://www.douban.com 2. zhihu.com 3.经典再读87 | 维堡图书馆:阿尔托的理性与浪漫 – 有方 (archiposition.com) 编辑 夏嘉骥 责编 柯思思 本文来自微信公众号“匠山行记”(ID:gh_d836161f0f54)。大作社经授权转载,该文观点仅代表作者本人,大作社平台仅提供信息存储空间服务。 TAGS: 中图书馆扇形空间自然光 相关文章英赫日报 | 李宁 × 空…米兰时装周的异星来客,用结…米兰“MoLo”移动与物流…西班牙艺术家 Juan d…把小鸟画成美少女,她弃医从…这些鸡蛋包装不只是有趣,设…国产文具又炸了!晨光再造“…七点资讯 |《更衣人偶坠入…AlphaDraw筑绘通「…秦始皇的黑,是你不懂的黑。