▼效果图
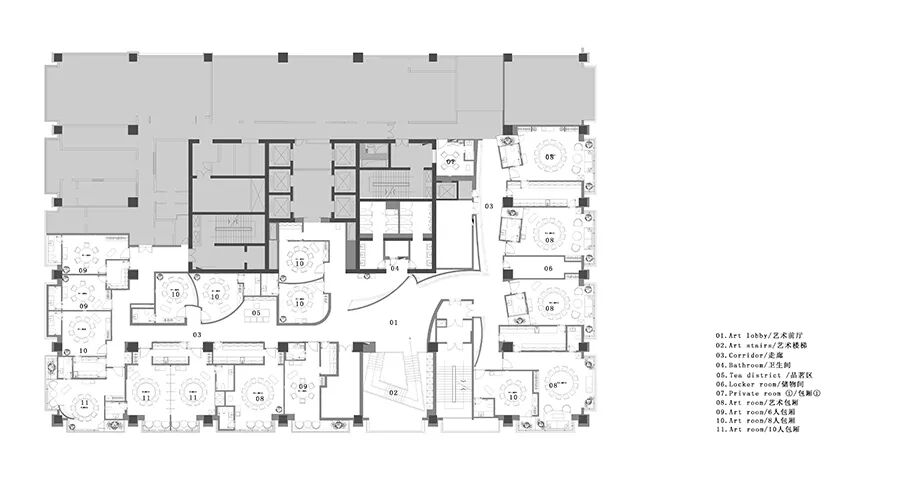
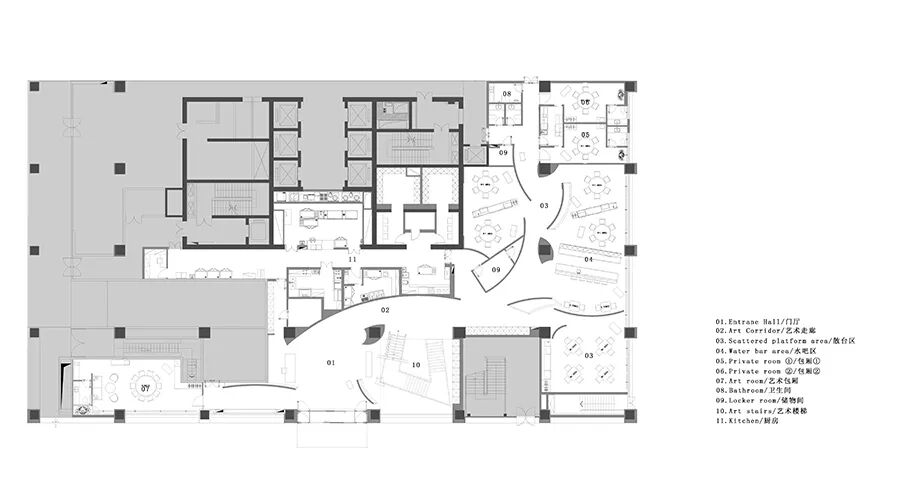
▼平面图
△1F
△2F
项目名称:美·大董南新仓店
设计机构:AD ARCHITECTURE∣艾克建筑设计
总设计师:谢培河
设计团队:艾克建筑
甲方团队:大董、袁玉芳、汤明姬、四希、大董南新仓团队
施工团队:北京华开建筑装饰工程有限公司
机电团队:北京智通思远机电设计咨询有限公司
智能系统:moorgen 摩根智能
照明顾问:赫光照明设计(广州)有限公司/石客照明
家具团队:雅丽木业
固装团队:北京合众友业酒店用品有限公司
厨房团队:金燃商厨
项目地点:北京
建筑面积:3000㎡
主要材料:手工漆、黑金砂、木饰面、木地板、不锈钢
设计时间:2021年5月
竣工时间:2021年11月
项目摄影:欧阳云
Project Name: Mei·Da Dongnan Xincang Store
Design agency: AD ARCHITECTURE∣Aike Architectural Design
Chief Designer: Xie Peihe
Design Team: Ike Architecture
Party A's team: Da Dong, Yuan Yufang, Tang Mingji, Sixi, Da Dong Nanxincang team
Construction team: Beijing Huakai Building Decoration Engineering Co., Ltd.
Electromechanical team: Beijing Zhitong Siyuan Electromechanical Design Consulting Co., Ltd.
Smart System: moorgen Morgan Smart
Lighting Consultant: Heguang Lighting Design (Guangzhou) Co., Ltd. / Shike Lighting
Furniture Team: Yali Wood Industry
Fixed installation team: Beijing Hezhong Youye Hotel Supplies Co., Ltd.
Kitchen Team: Jin Ran Commercial Kitchen
Project Location: Beijing
Building area: 3000㎡
Main materials: handmade paint, black gold sand, wood veneer, wood floor, stainless steel
Design time: May 2021
Completion time: November 2021
Project Photography: Ouyang Yun
奖讯|AD艾克建筑 大董 斩获 2021 美国 LIV酒店设计 类别最高奖项 Winner
AD Architecture@2022
近日,艾克建筑设计收到来自
美国 LIV酒店设计大奖 的捷报,
AD艾克建筑设计 项目——
美·大董南新仓店 斩获
餐厅– 高档餐厅 类别 大奖,
Recently, AD Architecture received a good news
from the LIV Hospitality Design Awards,
AD Architecture Project——
Da Dong Gastro Esthetics wins
Winner in Interior Design Restaurant – Fine Dining !
▴LIV Hospitality Design Awards 2021 官网获奖名单截图▴
获奖证书▼
关于 美国 LIV 酒店设计大奖
LIV酒店设计奖(LIV HOSPITALITY DESIGN AWARDS)由法玛尼集团(Farmani Group)创设,自1985年成立至今,法玛尼提升了艺术与设计在世界范围内的影响力,成为行业内举足轻重的权威组织。为顺应设计领域的变革与潮流,鼓励更多业态的设计师与作品参与竞赛,法玛尼集团于2020年创立了全新的奖项─LIV酒店设计奖,表彰在酒店建筑、室内设计和宾客体验等方面的设计作品,引领世界在商业、人文、住宅等空间设计中的脉动与趋势。
Liv Hotel Design Awards was founded by farmani group. Since its establishment in 1985, farmani has promoted the influence of art and design in the world and become a pivotal authoritative organization in the industry.In order to comply with the changes and trends in the design field and encourage more designers and works of business forms to participate in the competition, famani group created a new award liv Hotel Design Award in 2020 to commend the design works in hotel architecture, interior design and guest experience, and lead the pulsation and trend of the world in commercial, humanistic, residential and other space design.
LIV 官网
https://livawards.com/
AD艾克建筑 | 简介
人心与空间同振共鸣,即是遇见美好
AD艾克建筑设计(深圳)致力于建筑及室内空间独特视角的设计与研究,为每个项目打造卓异的视觉艺术。团队拥有突破自我界限的决心、国际化的设计视野和系统化的项目管理策略,坚持以探究性的态度来实践空间创作过程中人与物、人与人的交互关系。
AD艾克作品已在全球范围内获得广泛认可,近两年囊括英国Andrew Martin国际室内设计大奖、英国餐厅&酒吧设计大奖、缪斯设计奖、美国建筑大师奖、英国《世界室内新闻》杂志大奖、德国国家设计奖、红点奖、ICONIC AWARDS Best of Best至尊奖、美国IIDA全球卓越设计大奖、《Interior Design》杂志Best of Year Awards大奖、英国FX Awards、WIN Awards、LEAF Awards、Blueprint Awards、荷兰Frame Awards、APIDA亚太区室内设计大奖等国内外权威荣誉。
AD ARCHITECTURE | Profile
Resonating with space is a fantastic experience.
AD ARCHITECTURE (Shenzhen) is committed to carrying out architectural and interior design and researches from unique perspectives, and dedicated to creating distinctive visual art for each project. With international vision, determination to break the boundary and a strategic project management system, the team insists on an explorative attitude to create interaction between human, human and objects during spatial design practices.
AD ARCHITECTURE's works have been widely recognized across the world, and have won numerous authoritative design awards in recent years, including Andrew Martin Interior Design Award, Restaurant & Bar Design Awards, MUSE Design Awards, Architecture MasterPrize, World Interior News Awards, German Design Award, Red Dot Design Award, Iconic Awards (Best of Best), IIDA Global Excellence Awards, Best of Year Awards, FX International Interior Design Awards, WIN Awards, LEAF Awards, Blueprint Awards, Frame Awards, Asia Pacific Interior Design Awards, etc.
谢培河|Xie Peihe
AD艾克建筑设计创始人及总设计师
2020、2021 Golden Trezzini Awards评审
2020 LOOP设计奖评审
谢培河怀抱强烈的情感张力和原创精神,主张以感性丰富驾驭理性简约,高妙且自然地融合空间功能与个性。在简单与复杂的动势中呈现空间美学,让人心与空间精神同振共鸣。
凭借商业、住宅和办公领域的一系列极致空间作品,在过去几年内斩获了一系列国际知名奖项。其独具先锋性的“极简派艺术”空间设计语言,也已融贯东西方的认知并在全球业界得到极高的认可。受邀成为2020、2021年俄罗斯金特列吉尼建筑与设计奖(Golden Trezzini Awards for Architecture and Design)的国际评审之一,该权威级奖项以“建筑即艺术”为箴言,评审席中包括Daniel Libeskind、Mario Botta、Toyo Ito、Ricardo Bofill等建筑名师。同时受2020年LOOP设计奖(LOOP Design Awards)邀请,成为此初创奖项的首届评审之一。亦于2018年被香港Perspective透视杂志评选为“40位40岁以下优秀设计师”之一。
(美国)2021 美国《室内设计》杂志年度最佳设计奖
(英国)2021 英国Andrew Martin国际室内设计大奖
(英国)2021 英国餐厅&酒吧设计大奖
(新加坡)2021 新加坡室内设计大赛 金奖
(美国)2021 缪斯设计奖 金奖
(美国)2021 美国建筑大师奖 大奖
(英国)2021 英国《世界室内新闻》杂志大奖 金奖
(德国)2021 德国红点产品设计大奖 红点奖
(德国)2021 德国IF设计大奖
(英国)2020-2021 INSIDE世界室内设计节
(法国)2021 巴黎DNA设计大奖
(澳大利亚)2021 墨尔本设计奖 金奖
(意大利)2021 A'设计大奖赛 铜奖
(中国)2021 APIDA亚太区室内设计大奖 特别提名奖
(美国)2021 缪斯设计奖 铂金奖
(土耳其)2021 WA Awards 年度展厅唯一大奖
(美国)2021 Architizer A+ Firm Awards 特别提名奖
(美国)2020 IDA国际设计大奖
(美国)2020 美国《室内设计》杂志年度最佳设计奖
(英国)2020 伦敦设计大奖
(德国)2020 德国设计奖 大奖
(中国)2020 国际设计传媒奖 年度休闲空间
(中国)2020 金堂奖 年度休闲娱乐空间
(中国)2020 金堂奖 年度餐饮空间
(中国)2020 金堂奖 年度新锐人物
(中国)2020 金腾奖 TOP100
(德国)2019 德国标志性设计奖 至尊奖
(德国)2019 德国红点产品设计大奖 红点奖
(美国)2019 IIDA全球卓越设计大奖
(德国)2019 德国设计奖
(荷兰)2019 Frame Awards
(英国)2019 英国《世界室内新闻》杂志大奖
(英国)2019 欧洲杰出建筑师论坛大奖
(英国)2019 蓝图设计奖
(美国)2019 美国建筑大师奖 双项特殊提名奖
(意大利)2019 A'设计大奖赛 银奖
(中国)2019 中国台湾金邸奖
(中国)2018 Perspective's 40 Under 40 Awards
(美国)2018 美国《室内设计》杂志年度最佳设计奖
(美国)2018 美国建筑大师奖
(中国)2018 国际设计传媒奖
(英国)2018 FX国际室内设计大奖赛
(美国)2018 美国国际设计大奖
(中国)2018 中国金腾奖
(中国)2017 亚太区室内设计大奖
(意大利)2017 A'设计大奖赛
(中国)2017 中国艾特奖
Xie Peihe | Profile
Founder & Chief Designer of AD ARCHITECTURE
Judge of Golden Trezzini Awards 2020 & 2021
Judge of LOOP Design Awards 2020
With great sensitivity and originality, Xie Peihe adheres to create rational simplicity guided by emotional thinking, and to integrate spatial functionality with personality in a natural and subtle manner. He excels at presenting spatial aesthetics through the collision of the simple and the complicated, and strives to let people resonate with space.
In the past few years, Xie Peihe has designed many exceptional commercial, residential and office projects, which have won multiple world-class design awards. His pioneering "minimalistic art" space design language is well-known both in the east and the west, and recognized by the global design industry. He was invited as one of the international judges of 2020 & 2021 Golden Trezzini Awards for Architecture and Design. With "Architecture as Art" as the motto, this authoritative award's jury includes worldly famous architects Daniel Libeskind, Mario Botta, Toyo Ito, Ricardo Bofill and others. Meanwhile, Mr. Xie was invited by LOOP Design Awards 2020 and became one of the members of the first jury since its establishment. In 2018, he won Perspective's 40 Under 40 Awards, which recognized him as one of the 40 young design talents who are leading the future of design.
2021 Best of Year Awards
2021 Red Dot Award: Product Design (Red Dot Award Winner)
2021 IF Design Awards
2020-2021 INSIDE World Festival of Interiors
2021 DNA Paris Design Awards
2021 Melbourne Design Awards
2021 A' Design Award & Competition
2021 Asia Pacific Interior Design Awards
2021 MUSE Design Awards - Platinum
2021 WA Awards
2021 Architizer A+ Firm Awards
2020 International Design Awards
2020 Best of Year Awards
2020 London Design Awards
2020 German Design Awards
2020 International Design Media Award
2020 Jintang Prize - Best Leisure & Entertainment Space of the Year
2020 Jintang Prize - Best Dining Space of the Year
2020 Jintang Prize - Best New Designer of the Year
2020 Jin Teng Award - TOP 100
2019 The ICONIC AWARDS: Innovative Architecture (Best of Best)
2019 Red Dot Award: Product Design (Red Dot Award Winner)
2019 IIDA Global Excellence Design Awards
2019 German Design Award
2019 Frame Awards
2019 WIN Awards
2019 LEAF Awards
2019 Blueprint Awards
2019 Architecture MasterPrize
2019 A' Design Award & Competition
2019 Taiwan Interior New Talent Award
2018 Perspective's 40 Under 40 Awards
2018 Best of Year Awards
2018 Architecture MasterPrize
2018 International Design Media Award
2018 FX International Interior Design Awards
2018 International Design Awards
2018 Jin Teng Award
2017 Asia Pacific Interior Design Awards
2017 A' Design Award & Competition
2017 Idea-Tops Award
- END -
精彩回顾
▲季裕棠 / 如何理解对家庭生活以及纯粹住宅精神思考?(30分钟)
▲全球TOP3酒店设计公司:C C D掌门人郑忠谈顶级设计 (16分钟)
▲琚 宾 解析东西小院 / 淡然无极而众美从之(7分钟)
本文来自微信公众号“云想设计美学”(ID:Yunxiang_Design)。大作社经授权转载,该文观点仅代表作者本人,大作社平台仅提供信息存储空间服务。










