Aalva arquitetos
我们有建设性的元素渗透在大众和博学者之间,存在与概念之间,中立与对立之间,基础与悬浮之间。
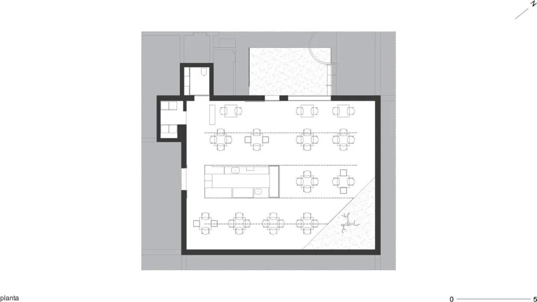
we have constructive elements that permeate between the popular and the erudite, between preexistence and conception, neutrality and protagonism, grounding and suspension.
一个到处都是空隙的盒子似乎符合空间。由于这个空间的节目是面向公众的,所以一个工作台-岛-以一种孤立和中心的方式定位,以完成菜肴。因此,我们有最小单元屈曲。纹理和特征,如景观的可见组成,通过色彩控制、家具的准时性和结构的轻盈/悬浮来平衡。
A box with a ubiquitous void was as if it conforms the space. being that the program destined for this space is the attendance to the public, a station of work - island - was positioned, in an isolated and central way, for the finalization of the dishes. we have, therefore, the minimum element flexion. The textures and features, like visible composition of the landscape, were balanced by the chromatic control, the punctuality of furniture and the lightness / suspension of the structures.
从概念上讲,该项目被置于最为多样的辩证法之中——紧张关系——比如客户的浴室不分离,这只是一个“性别”。
Conceptually, the project is placed among the most diverse dialectics - tensions - such as the non-separation of the bathroom for clients, which is just one, 'gender'.
这是一个与日常工艺材料进行讨论的动作,它触及了由陶器和金属发展而来的流行建筑-这些难道不是烧烤的普通形象的材料吗?-在一篇诗意的论文中,除了被称为形式的奇观之外,服务的工业和技术设备与准备操作中的个人处理之间的对立。
An action that is discussed with the everyday materials of the craft, which touches the popular construction, which develops from the pottery and metal - would not these be the materialities of the ordinary image of a barbecue? - in a poetical thesis and antithesis between the industrial and technological equipment of service and the personal handling in the operations of preparation, in addition to being called for a spectacle of the forms.
本文来自微信公众号“设计诗designer”(ID:shejishi_designer)。大作社经授权转载,该文观点仅代表作者本人,大作社平台仅提供信息存储空间服务。










