Shared Office Space Design
日本共享办公空间设计
“共享办公空间”虽不是新名词。比起传统的写字楼,越来越多的人开始喜欢上共享办公空间的氛围。而日本的共享办公更是他们自身的特色。
下面精选了日本的8个共享办公空间设计,彰显个性化和灵活,让你体验不一样的办公氛围感!
▵ 项目实景图
一楼是宽敞的办公空间,整个空间被包裹在树木之中。
建筑的两侧是绿地,所以设计师选择了开阔的落地窗设计,并且用白色的窗帘营造一种温馨开阔的氛围感把花园里的景色引入到室内。
设计师在室内设计了多个休闲的吊椅,方便工作劳累的时候放松休闲。
二楼的改造,设计师尽量减少拆除,保留传统日式房间的横梁,这样的横梁方便安装灯具和走电线,还有很好的稳定和防震功能。
庭院里,设计师设计了一种由六个不同角度表面组成的休闲亭,屋顶、屋檐和墙壁都由板块组成,板块的倾斜角度还考虑了阳光角度和雨水,最后形成一个坡状。
BASE POINT
纱帘做办公隔断
这是一个位于东京西新宿的共享办公室的改建。建筑周围都是高楼林立,设计师在传统办公空间的基础上进行改造,2楼主要提供多人的会议室,用白色的隔板,营造一种半开放的办公氛围。
也有适合多人的办公空间选择▽
整个项目的一大亮点在于3楼的办公空间改造,这里设计了多个适合个人的小空间办公。
红色的纱帘很有视觉冲击感,保护了私密性的同时,也让整个“格子”空间不那么沉闷。
每个“格子间”就是一个单独的办公空间,可以供租赁。
KAGU House
木结构预制共享办公
KAGU House位于北海道的东川町,这里远离城市,周围是一个拥有8000人的小镇。
茂密的森林是天然的木材来源,设计师就地取材,在这里造了一个用木材打造的共享办公空间,整个项目包含了厨房,厕所,生活空间以及会议室。
建筑共有两层,除却成本考虑,比起传统办公空间,设计上更加考虑工作者的需求,设计一个自由且轻松,更加便于交流和增加创造力的空间。
进入内部,建筑几乎是木制的空间,减少化学和其他人工材料的使用。
Digital Nomads
数字社区共享办公
项目位于东京涩谷全新的综合大楼内的,这是一个极具未来感和科技感的空间。
整个设计与公司的产品特性相结合,包含了接待处、圆形剧场、电话亭、会议空间和各个工作区。
杉木制作的家具飘散着自然木材香,蜿蜒绵长的线条,营造一种流动的氛围;屋顶由由534个灯泡组合而成,在天花板上描绘出优美曲线。
Mol.t 联合办公
厂房改造共享办公
联合办公空间 Mol.t 位于日本福冈,办公室位于一个工业厂房的大楼内,由于场地限制,整个项目被设计成一个适合小型办公空间的氛围。
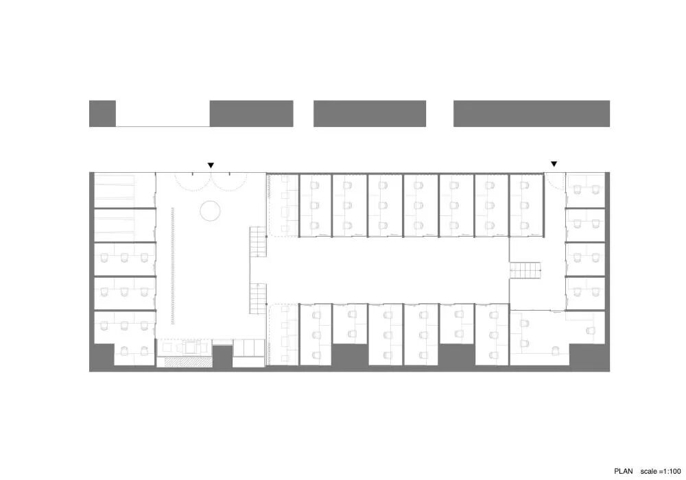
▵ 项目平面图
▵ 项目改造前
整个项目的原址中,拥有多根承重横梁,设计师将两个、三个和六个人的工作区被安排在一个盒子状的结构中。
还搭建了楼梯,将办公空间分隔成上下两层。
每个工作区的地板下提供了 1400 毫米高的存储空间,尽可能收纳好多余物件,保持环境的干净整洁。
Share M-10
咖啡馆式共享办公
这是一个自由而柔软的空间,设计师想要创建一个像“森林”一样的共享办公室。
外围的办公空间是传统的圆桌和椅子,设计师将外部庭院的花盆设计大胆运用到室内来。
Uzumasa Tokiwa-so
仓库改造共享办公
Uzumasa Tokiwa-so 是京都市的一家联合办公设施,由Masaru Takahashi Architectural Design Office设计的现有仓库改造而成。
设计师尽量不改变原本的建筑结构,增加舒适度,运用当地的木材进行空间改造。
设计师拆掉了一些不必要的隔墙和天花板,让整个空间更加开阔,保留了一些传统的木制横梁设计。
办公空间内的桌子、书架、吧台、简易厨房也充分运用当地的木材进行制作,整个空间环境呈现一种温馨的木制氛围。
项目位于川崎市中原区JR南武线武藏新城站北侧,这里曾经是有名的种植村庄,有着悠久的种植历史。
后来发展为繁荣的城市,办公楼的周边分散着许多商铺和住户。
设计师和在原有的办公氛围上进行了改造,首先考虑在首位的是内部光线问题。这层楼的窗户几乎全部面向正西方,光靠自然光的话上午很暗。
设计师的目标是通过制造不均匀的明暗,在确保工作面照度的同时,对其他地方的暗度和亮度进行了浓淡处理。
天花板与屋檐水平相匹配,使内外连续可见。
那个天花板用一种反光材料全面涂抹,街道的气息反射着被拉入室内;虽然在二楼,但能感受到商业街上的人的移动,又产生了室内颜色渗出的效果。
卫生间设计▽
SHIBUYA QWS共享办公空间位于涩谷最繁华的Scramble广场15层。
这里实行会员制,整个办公空间大约2600平方米,包含了公共空间、联合办公区、沙龙、活动空间等区域,还有配套的咖啡厅、厨房、画廊等等。
中部公共空间,联通了各个区域,这里是一个自由活动区域,陈列了一些圆桌椅、矮凳等区域,尽量营造一种开放的氛围。
向联合办公空间过渡的是一个简约质感的公共接待区域,这里摆放了一些可移动的家具,圆柱形状的流动接待台。
联合办公区域很宽敞,类似传统的办公区域设计,这里是开阔的落地玻璃窗,运用多个长桌形成一个聚集的办公空间。
岩棉吸音板墙壁接缝处可以挂一些小物件。
储藏室门口也是一个灵活办公区域,这里的一大特色是运用了一些可改变宽度或长度的折叠桌,能根据办公需要调整。
本文来自微信公众号“一起设计”(ID:together-design)。大作社经授权转载,该文观点仅代表作者本人,大作社平台仅提供信息存储空间服务。










