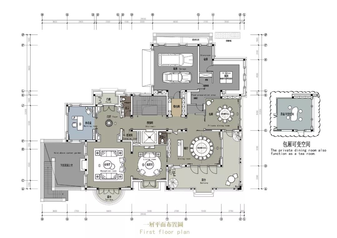
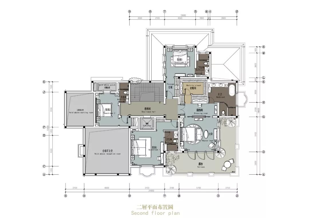
作品集2023-06-20 914㎡复式样板间,耐人寻味超乎你对家的想象! “美感在乎赏鉴,故美学之判断,所以别美丑。是吾人意识发展之各方面也。” 蔡元培老先生在《美学观念》一文中已提及美育的重要性,审美与修养,审美与学识,都有着不可分割的关系,而审美能力对于当代社会学习、工作、社交和生活各方面更是多有助益。 △灵感素材 于生活而言,起居空间占据了其大半时间。沉浸在此,当代人已不单纯满足平和与舒适,“家”亦成为了自我审美表达的重要载体。人、空间与艺术三者相互交融,彼此牵引,创造出理想生活的样貌。 将艺术与人文情怀包融于空间中,从不同维度展现了屋主的生活格调,也为当代大坪数居家空间树立了模板。 落落大方的门厅以极简的金属质感为主调,“少则得,多则惑”的东方辩证哲思为内在气韵,使人进门便感受到优雅而大气的空间气场,设计感极强的吊灯赋予了门厅别样的几何线条,方圆之间,自由天地。 门厅正对着的是空间开阔、窗明几净的会客厅。沉稳的皮质沙发搭配质地清晰的大理石背景墙,地毯柔和的纹路综合了空间的刚硬,与淡绿色透明吊灯一起,为空间增添了几分活力。阳光透过柔纱窗帘轻拂在会客厅内,宾客与屋主得以细语交谈,宾主尽欢。 △灵感素材 门厅的另一侧是办公室。一扇哑光玻璃拉门保障了在家办公其间的私密性,简洁的桌面,舒服的桌椅,清新的绿植,为工作减少一丝烦恼,也为片刻宁静提供无压力的场域。 △Poltrona Frau 法拉利Cockpit座椅 紧邻会客厅的,是悠闲舒怡的起居室。水滴涟漪般的吊顶让空间产生灵动的气息,永恒与美好在此波荡而开。地毯和茶几的几何形搭配平衡了空间,也使之层次更为多样,别具一格。 通过一扇拉门,进入餐厅。塞浦路斯灰大理石地面沉稳而时尚,一侧的调酒吧台彰显了屋主的格调,圆形餐桌符合中国人饮食习惯,吊顶与吊灯更是在用餐其间为圆满融洽的氛围述刻了形状。 △灵感素材 沿着楼梯上二层,这里是相对私密的卧室空间。 穿过楼梯间,主卧在楼层的一侧,色调柔和,质地讲究,不过于追求时尚,但隐藏的线条和肌理使人安逸。床头浅灰绿背景墙在空间中十分亮眼,与深色地毯产生了空间过渡,窗边精致的深色土耳其蓝单人皮质沙发,为主卧画龙点睛。正对床榻的抽象画,诠释着屋主不凡的品位。 △灵感素材 客房延续了主卧的静怡与品质,配合适宜,调性温和,即保证了整体设计的统一,又在不同的细节上进行权衡与改变,使小住的客人能感受屋主的贴心。 走下楼梯,在地下层空间内,依旧以塞浦路斯灰大理石为地面主基调。在多功能活动区,一侧是亮白的酒吧台,另一侧则是木质长桌,可以满足家庭及好友相聚时的各种需求。 半开放式的红酒雪茄区采用大片落地镜面,延展了空间视觉。低调的黑色皮质沙发给人神秘而华贵的心理感受,精致的墙面展示柜为屋主留以足够的空间陈列酒品、雪茄及各类周边。 △灵感素材 在地下层还设立了影音兼KTV室,灰色调墙面与墨绿色家具,使空间安宁,金色线条的加入,又增添了流动性与金属感,满足了家庭娱乐和好友聚会的多样性选择。 西子青山湖这套居所,为高品质审美作出无瑕的诠释,展示出空间自在的气度,以及居所拥有的内在精神,也呈现了对美好生活的愿景。 本文来自微信公众号“亚太室内设计”(ID:ytsnsj)。大作社经授权转载,该文观点仅代表作者本人,大作社平台仅提供信息存储空间服务。 TAGS: 室内设计蔡元培 相关文章Kleoniki Andr…这是大王Day.281获奖作品《2020最佳图书…精选头像|搞怪来袭!安东尼奥·布埃诺 作品配色清新梦幻的场景插画,充…美国Jennifer Mc…【小鹏设计】设计小改/动力…【首发】地点空间丨打破空间…谢商家不坑之恩!只骗有钱人…