这套住宅位于台湾新北
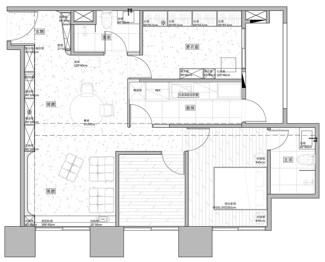
面积:86㎡(套内)
格局:3 房 2 厅 2 卫
居住人数:2 大
1. 玄关设计:
进门,自玄关起即是对家的诠释与生活体现的开始
以纯白无瑕之笔围塑轻巧的转折
其中一侧悬挂似清澈湖面的明镜
延伸空间视觉感之外
也为留白的寓所带来波浪曲线的律动
无阻朗阔一路串连成排白色立柜
妥贴稳当收拾起双人新居所需的生活物件
贴心凿挖一个猫洞
为日后新加入的成员预留一个安心栖所
2. 客厅设计:
白透感的内涵中漾起简净独特气质
光束照射于地面映现韵律的线条美感
明暗之间回归纯净,力求不受框架局限的束缚
以空白盛装叙事诉诸率性本真状态
展现自我的个性主张、精神与格调
相较于乳胶漆的光滑面
使用具有微颗粒感的凯恩矿物涂料
一来更能彰显立面的特殊触感与柔光色泽
显露内敛优雅的低调微镜面效果以及粗朴立体感
二来也能守护安全无毒的居家环境
实木木百叶+卧榻区,两者一拍即合
既能悠闲坐倚窗边享受日光洗礼
也能作为收藏品的展示平台
漫进的暖光书写一日朝气
待夜幕降临点亮错落有致的吊灯
自成一格耐人寻味的艺术氛围
3. 餐厅设计:
镘抹上优的钢石
细微肌理与特殊流纹便温柔舒展开来
一体成形无接缝的特性承袭了墙面的白系空间
安静无语却充满生活的温情与暖流
铺叙为底,赋予柔和姿态迎接未来每一日
揉入台湾本土陶艺家作品点缀餐区
酝酿质朴大地润泽气息
温儒雅致、恬淡适己
白润宅居抹上陶土的温度并搭载木调与藤编材质
流泻清新雅致的用餐情调,伴屋主享用品尝佳肴
4. 天花板设计:
保留原始天花高度并注入些许柔弧感
公区的横梁以圆角收边
轻巧的设计力道埋下不着痕迹的隐形分割
维持全室一贯之视线无阻的朗澈通透感
5. 主卧设计:
步伐推进迈入睡眠区
悄悄置换上轻浅木纹地板
延续主体性的白净柔润盐系感
谢绝浓墨厚重的多余华丽装饰
聚焦静谧淡雅日常,留下一室隽永诗句
房内大梁以弧面柔顺衔接,消弭尖锐感
一盏线条典雅的奶油灯呼应木系床头
营造柔韵光感情境,选配Great Living 格蕾寝饰
防蹒抗菌铺棉品质与轻柔耐水洗的特质,打造舒心睡卧境地
6. 更衣室设计:
嵌入灯条的玻璃柜更显莹白透亮
这是女主人摆放包包、配件的地方
相依而序的一字形梳妆桌构筑打理仪容的小天地
同时辅以系统柜建立藏纳有序的储物哲学
平整收拢、避免紊乱,迎来清爽之姿
本文来自微信公众号“亚太室内设计”(ID:ytsnsj)。大作社经授权转载,该文观点仅代表作者本人,大作社平台仅提供信息存储空间服务。










