简约风设计
每天给你分享一个案例设计
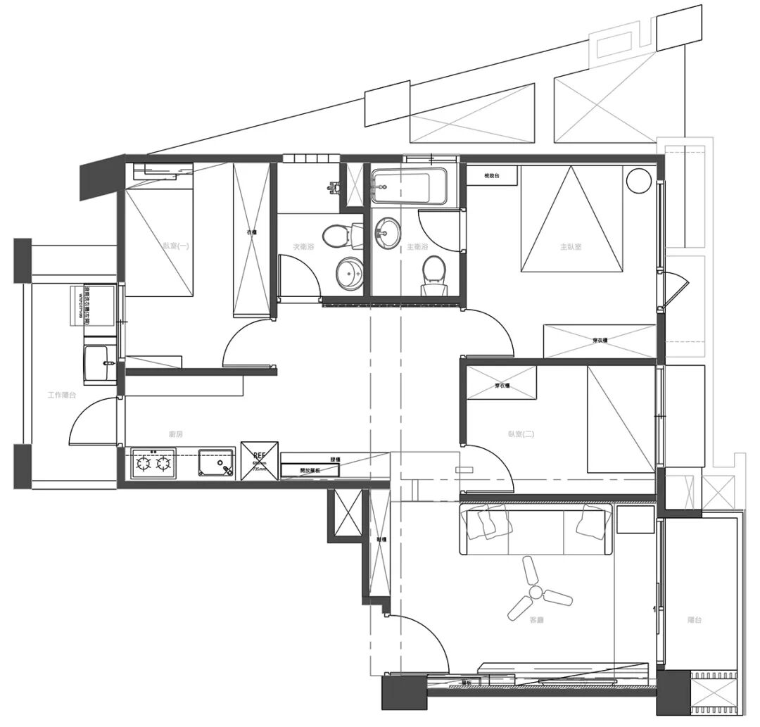
这套住宅位于台湾桃园
面积:72.6㎡套内
格局: 3 房 2 厅 2 卫
居住人数: 2 大 2 小
由 缇奇设计 设计
1. 客厅设计:
甫一入内,镘抹灰泥由壁面推向天花
架构了率性基底,木纹地板迳自推向客厅
使玄关成了若有似无的存在,仅是在鞋柜与污衣柜引领下
另佐以木格栅疏落有致的优雅
清晰梳开一道廊道轴线,构成客厅的完整性
移步向前,纤细红铜撑起男屋主珍藏烈酒
错落姿态承如电视柜水平向堆迭
展开另一向度的铺陈
同时衔接了柱体和壁面的深度落差
在高低、厚薄、深浅之间
巧妙平衡了厚重水泥,框架一幅厅区主景
百叶窗筛下饱满采光
只留下与时变换的光影线条
呼应水泥朴实刷痕、木纹流动线条
就连百叶窗也带有镍色雾面光泽
在层层叙事下,回忆了一段旧时光
就因这面辽阔窗景值得细细品味
设计师特别在窗前筑起倒 L 型木框
做为下班后看景小酌角落
倒 L 型空间同样可对应至电视墙蓝色框线
及廊道口木框,透过凹凸虚实迭映
让居住者以不同视角出发,交迭了日常里的新场景
即使工业复古的英伦印象
内敛地藏在金属、水泥和木料细节里
还配上牛皮拉釦沙发、法国古董柜及天然老木块
这面绅士蓝却是那点睛之笔
不仅体现男屋主对老物件的兴趣,更点亮了回忆里的层次
2. 餐厨设计:
当脚步跨越木框过道后,光线悠悠照亮餐厨
如此光景源自开放式配置,藉由餐边柜延展下厨范围
同时倚着边柜垂直推出餐桌,由此奠定牵引动静的 ㄇ 字路径
全室将木质门框视为过渡
渐渐卸下男主人的风格色彩
在水泥、红铜、深色木料中,缓缓注入磁砖、油漆
以浅柔清新气息带进女屋主的生活态度
如同这款手工制磁砖,同时以仿旧
防泼溅饰材特性完美诠释夫妻各自需求
3.走廊设计
4. 主卧设计:
干淨、明亮、舒适,是女主人设下的关键字
全然跳脱客厅调性,以暖灰墙映亮卧房主景
更搭配灰棕木纹
藉木料抛磨后的温润表面营造放松适眠情境
这片轻盈画面悄然藏入一抹胡桃木色
是当作床头柜的实木块、床头灯
亦是壁架,进而带入代表男屋主的象征性元素
彰显出混搭设计之微妙
4. 小孩房设计:
这次不只探索了夫妻心中蓝图
也让姊妹参与房间规划,亲自指定主墙色
灰粉与薄荷绿分别表述了姊姊甜酷公主梦、妹妹爽朗活泼性格
亮色选择不只放大了小空间,也点亮采光不足的妹妹房
收纳性是陪伴孩子成长的关键
在有限面积下,以滑门争取过道、加大柜深拓出双层吊杆
为姊妹俩庞大的衣物量安排了置顶高柜
并采直向木纹消弭压迫感
至于顶上斜樑亦藉一笔弧线修饰,勾勒了轻盈感
5. 次卫浴设计:
考量餐厨主光源来自客浴
敞开卫浴门是必要之举,于内选用柔和粉肤磁砖
为的是铺陈杳无声息的背景
因此特意延续门板灰棕大地色系,就为画面和谐性
本文来自微信公众号“亚太室内设计”(ID:ytsnsj)。大作社经授权转载,该文观点仅代表作者本人,大作社平台仅提供信息存储空间服务。










