客厅独有的社交属性使它赋予与众不同的空间魅力,它是整个建筑的开场白,也是一段完整的结束语,这里需要有温暖的冷静、个性的标签和成熟的浪漫等,下面开启本案特有生活的故事。
设计选取米灰、棕咖为主色调,局部采用镜面金属加深细微刻画,轻柔的窗纱送来自然光影,把空间的舒适氛围给足,而温润的灯光和不同的家居材质交相映辉煌,生出客厅层次的美感。
△主卧一
主卧定位简素、温馨的格调,浅色+原木+棉麻元素的组合,是风轻轻扬起纱帘的温柔,而铺设木质地板,让人身心放松,平复繁杂心绪,让内心沉淀,感受时光安然,岁月静好。
配套衣帽间是整体风格的延续,梳妆台的镜面哑光,彰显了整个台面的贵气,不同功能的收纳空间采用统一镜片处理,不规则而层层叠叠的效果呈现更为精致。
金属与玻璃和大理石搭配的洗漱台,窗框以及大理石铺装,使卫浴的画面展现出利落干净感,三面玻璃窗环绕提供了充分的光线,而干湿三区的规划,显出了沉稳与实用性。
在灯光的运用上,设计将天顶的几何式线,演变延伸到其他空间,隐藏型的光源,使其更为柔和,茶余饭后,柔和的灯光伴着玩偶和孩子嬉闹的笑声,每的日常,就在这其乐融融的家中度过。
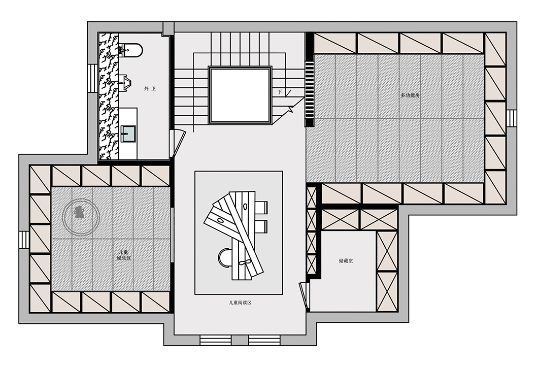
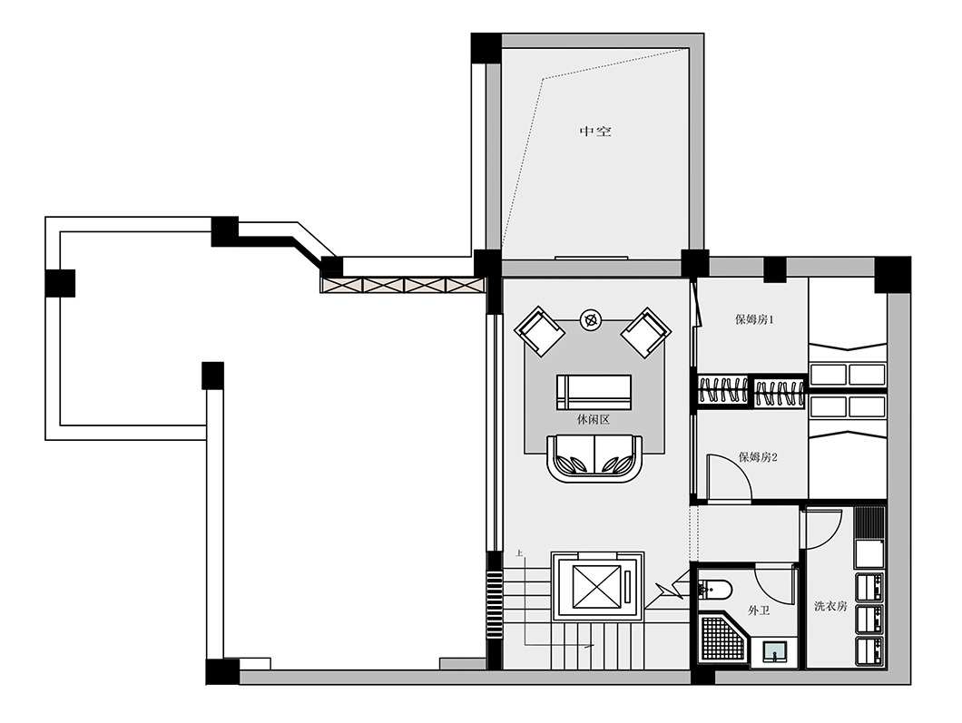
平面图纸
△一层平面图
△二层平面图
△三层平面图
△四层平面图
△负一层平面图
△负二层平面图
本文来自微信公众号“别墅装饰设计院”(ID:BieShuZhuangShi)。大作社经授权转载,该文观点仅代表作者本人,大作社平台仅提供信息存储空间服务。










