BABAYANTS ARCHITECT
简约风室内设计
“舒适的极简主义风格”强调由光线的变化,来定义空间。空间里简洁的体块设计,天然的材料和家具清晰的几何轮廓,都是这种风格的特点。
这种风格虽然非常简单,但也很微妙。它的要求很高,需要完美的比例,才能展示出空间美学。
今天介绍的6个项目皆出自于俄罗斯的室内建筑设计事务所「BABAYANTS ARCHITECTS」,他们主打极简主义风格,他们力求在混乱的生活中找到平衡,努力从每个元素的意义和完美的角度来重新思考空间设计。
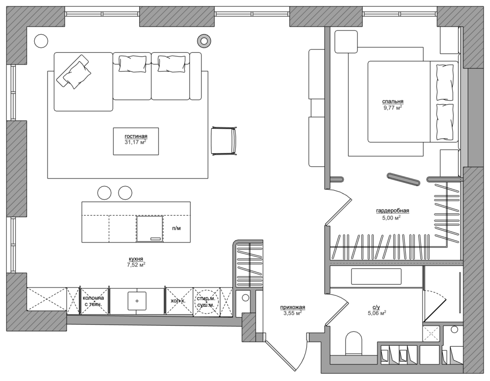
VTB ARENA PARK
面积:95 М2
摄影:SERGEY KRASYUK
△住宅整体布局图
VTB是一个高品质建筑,它有自己独特的曲线和清晰的几何形状。当你进入公寓时,首先映入眼帘的是一个悬挂在两面墙之间的木制玄关柜。在它后面,您可以看到公寓的公共区域。通高的穿衣镜和木柜之间有完美的比例关系。
该项目的亮点是公区通向工作室的大型滑动木制隔板。设计师找工厂专门制作了这种隔断结构。工作室是一个工作空间,柜门关闭时,这是一个完全独立的房间。同时也可以打开隔板以创建更大的公共区域。隔断布置的四种选择给了空间的不同印象。
△定制隔板
卧室里橱柜与书桌完美的结合,每一条线都有一种精确与和谐的感觉。
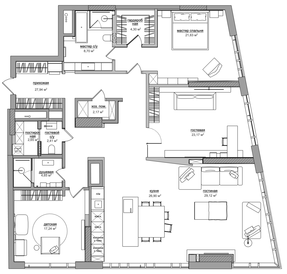
SADOVIE KVARTALI
面积:208 М2
摄影:SERGEY KRASYUK
层高较高的空间设计起来也非常困难。当你有3.4米的层高时,你不能把东西做得太小,否则放置家具后会非常明显。设计师控制了设计上的所有比例,以避免有看起来不成比例的风险。
△住宅整体布局图
大理石操作台背后,深色木饰面高贵又大气。
客厅和餐厅展示了内敛的风格,充分体现了客户的个性。
明亮的垂直镜子和彩色玻璃,柔化了两条金属水平线隔板。上面是内嵌水龙头和毛巾架,下面是置物架。浴室里的木制水槽,使全黑的空间更加丰富。
卧室的没有很女性化设计。相反,在这里我们有一个轻盈的色调,还有严格完美的线条比例。
梳妆台融合在背景墙里,细而高的线条勾勒出女性的美丽。
衣帽间的设计高贵大方▽
私人浴室同样沿用了简约大气的风格▽
MOSFILM
面积:107М2
摄影:SERGEY KRASYUK
△住宅整体布局图
书房空间同样采用了玻璃装饰画和玻璃家具:几何玻璃茶几。
书桌上玻璃摆件非常精致▽
走廊上同样挂了绿色的玻璃挂画▽
PRESNYA CITY
面积:66М2
△住宅整体布局图
浴室采用了丰富又复杂纹理的大理石,置身于这样的空间中并与之互动,可以给你丰富的审美体验。
ZIL ART
面积:93М2
弧形的木饰面柱子隔断,通透的设计使空间简约有设计感。几何造型的隔断将公共空间分为厨房和客厅两部分。垂直方向挂了一个支架和一个架子,让隔断 美观还具有功能性。
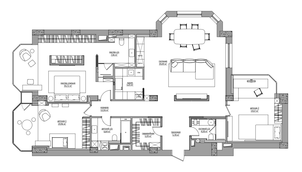
DOMINION
面积:165М2
△住宅整体布局图
这个室内的所有空间布局,都是根据建筑的造型决定的。项目的美学是从规划解决方案来构建的。设计师有意识地简化一切空间,来引起人们对天然材料的线条、比例和纹理的关注。
大儿子的卧室用了墨绿色背景墙,蛋壳型的吊灯充满童趣。卧室里学习桌的设计,让孩子有独立的学习空间。
婴儿房沿用了墨绿色调和木饰面的基调,搭配了暖色的圆形装饰,更温柔。
本文来自微信公众号“内小宅”(ID:insidehome)。大作社经授权转载,该文观点仅代表作者本人,大作社平台仅提供信息存储空间服务。










