/68㎡自然原木风小两居,动静分区、衣帽间、浴缸等需求统统满足!

68㎡自然原木风小两居,动静分区、衣帽间、浴缸等需求统统满足!

本案是一套68平米的二手房改案例,是屋主小夫妻在北京的婚房,他们三年内没计划要小孩,父母偶尔来居住。
     
屋主夫妻的衣服比较多,需要一个相对独立的衣帽间,而且有泡澡的习惯,希望增加浴缸。
   

     
   

图赏


 
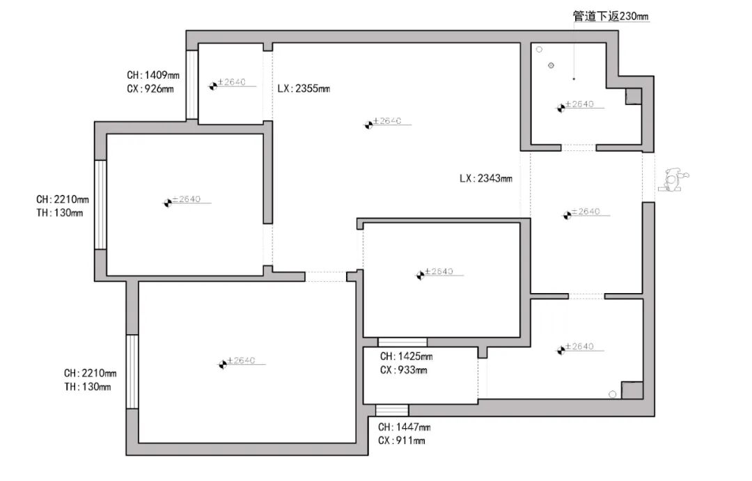
▲原始结构图
 

 
▲平面布置图
 
 
|  客厅  |

 

 
客厅空间整体色调以白色、原木色、灰色为主,小面积点缀金色元素,冷暖对比,整个空间温暖不油腻。
 

 
朝南的窗户采光非常好,百叶帘成了光线的分割器,光线柔和不刺眼。
 

 
整合客厅的一面墙,分别置入书柜和隐形门,保证的空间视觉的整洁统一。两个门洞形成的洄游动线将客厅、衣帽间、卧室、阳台多个空间串联起来。
 

 
 
|  餐厅  |

 

 
沙发背景墙相对简洁,餐柜餐桌椅选了接近电视背景墙一样的用色,保证空间的材质尽可能的统一。
 

     

     
书柜和隐形门细节图,基本维持在同一个平面,让空间更加完整。餐边柜选了原木色与长虹玻璃结合的款式,有点小复古的感觉。
 

     

     
走廊空间干净清爽,视线通透。
 
 
|  阳台  |
 

 
在南阳台增加了内嵌式烘干机,旁边还有一组收纳柜,上面可作为台面用来熨烫,叠放衣服,增加了操作空间。
 
 
|  主卧  |
 

 
主卧依旧延续客厅风格,白+原木色搭配焦糖色的窗帘,成为了整个空间的主角。
 

 
省去了床头柜,顶面没有做吊顶,做了双层石膏板圈边,增加空间的层次。
 

 
床一侧增加了衣柜和梳妆台,方便换衣和梳妆。
 

 
被白纱帘过滤后,暖暖的阳光直接洒到了床上,舒服的让人睡到自然醒。
 

     

     
配合敞开格的用色,梳妆椅也搭配了绿色的边框,显得更加自然灵动,有点小复古的感觉。
 

     

     
定制了舒适的皮质床头,灰色的皮质搭配金属吊灯,高级感满满。
 
 
|  次卧  |
 

 
两个睡眠空间皆是南卧,采光都很好,全屋统一屋主最爱的焦糖色窗帘。
 

     

     
角落里的河马凳增加趣味性,明媚的橙色窗帘搭配轻盈精致的纱帘,柔和又醒目。
 
 
|  厨房  |
 

     

     
厨房空间扩大以后增加了操作和储物空间,女主喜欢烘焙,特意增加了烘烤箱。网红小白砖搭配水磨石,颜值满满,让空间成了大显身手的地方。
 
 
|  卫生间  |
 

     

     
独立出来的干区卫生间贴了半墙的瓷砖,上半部分刷蓝绿色墙漆,营造出自然小清新的空间感。
 

     

     
卫生间内部选用马卡龙色调,淋浴区增加了壁龛方便储物。右侧原洗手池区域,还增加了方形浴缸,满足了女主泡澡的需求。
 

本文来自微信公众号“亚太室内设计”(ID:ytsnsj)。大作社经授权转载,该文观点仅代表作者本人,大作社平台仅提供信息存储空间服务。