家是居者真实的生活方式,设计顺延了建筑、自然,城市与居者之间的关系,重新诠释纯净而奢适的人居理想和流贯着艺术自由的美学宣言。
入户要有仪式感,推门见厅,不仅是视野的开阔和使用的便捷,更是一种纯粹的艺术表达,在这里仿若身处大自然,肆意潇洒的氛围油然而生,不规则的艺术摆件和生机盎然的绿色植物,生出一番趣味艺术之感。
一面墙体的留白,凸出室外景观与室内空间的合力,大尺度彰显了空间的极度张力和视觉冲击力,而无形力量塑造的流动,串联场域的秩序,打造生活与自然的有机融合。
通道将各功能区分隔,呈现出宁静沉稳的氛围,墙体采用圆润的手法,既合理利用了空间尺度又保持了美观度,灰色的橡木饰面和建筑体融合,派生出灵动感,侧面展现了居者的生活品味。
客厅主色调为灰色的橡木饰面,再晕染深蓝色和暖黄色做色彩调和,平衡内部与室外的亮度,不规则的大理石表面处理,映衬着一些艺术装饰,简约随性,吐露生活的细节与精致。
对自然解放和光影引导,将环境与建筑的优势最大化,释放豪宅的风度,空间的流畅性豁然开朗,视野蔓延至整层观景面,肌理在漫溢的阳光下通透生辉,感受到随性的慵懒和治愈的活力。
厅侧是下沉区,这里是景观休闲的最好的位置,清晨或午后,缕缕暖阳洒落阳台,斑驳交错的暖阳邂逅粼粼惬意的江天一色;静坐于此,抬眸望去,满眼绿意,一切的倦怠能够得到舒缓。
茶台和休闲区让空间层次感和实用性更加丰富,这里容纳着居者的生活与理想,兼具美与实用的姿态,使家的温暖和艺术气息、归属感、秩序感和仪式感倍增。
设计以简洁私密和其喜好搭配时尚的元素,打造出独立的休闲处,让居者享受专属自己的自由空间,静思,休闲、阅读,创造多维的沉浸式居家体验。
这里不仅是日常起居的体现,也是家庭成员相聚的空间,既满足了家人或朋友聚餐的需求,也给日常就餐满满的仪式感,设计将美学的感性和空间质感做了最完美的平衡,于觥筹交错间享受这宁静的港湾。
空间环境与心情是辅成的过程,主卧视野非常开阔,设计以沉稳安静为关键词,温润的元素,合理光线创造舒适的睡眠环境,通过材质的运用和生活方式的结合,从触觉的舒适来提升温馨感。
主卫和衣帽间使用了大量的金属和玻璃元素,和对称式布局,予人朴素而灵动的生活体验,清晰可见的纹理,增强了空间自然沉稳的气质,同时也让居者的心情更加沉静。
多功能娱乐室实现了居者纯粹的艺术审美,丰富了其对精彩生活无限的向往和热爱的不懈追求,错落有致的沙发形成高低差,不同色块的对撞和融合,不仅勾勒出空间的各同形态,而且让情感的互动和交流得以随时产生。
我无限的热爱着新的一日/今天的太阳/今天的马/今天的花楸树/使我健康 富足/拥有一生/从黎明到黄昏/阳光充足/胜过一切过去的诗
——海子《幸福一日》
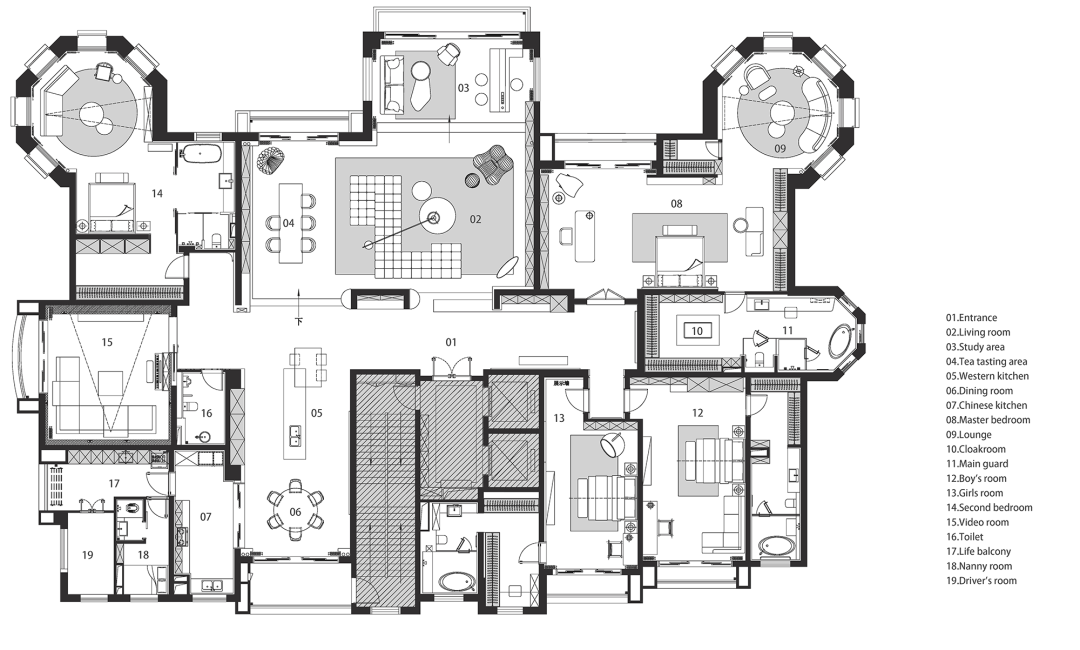
△平面布置图
项目名称|星河湾·海怡半岛
项目地点|中国·广州
项目面积|682m²
设计总监|彭琦
设计团队|钟颖、吴中立、林志武、曾钧浩
设计机构|广州慕舍设计顾问有限公司
素材来源|环_设
文案整理|何禾
完工时间|2022年03月
项目摄影|欧阳军印 林世凯
本文来自微信公众号“别墅装饰设计院”(ID:BieShuZhuangShi)。大作社经授权转载,该文观点仅代表作者本人,大作社平台仅提供信息存储空间服务。










