现代家居
一套67㎡的住宅,纯净温暖,由FORM bureau设计,屋主是一对年轻的夫妇,他们希望拥有舒适、简约的生活氛围,整个室内的基础是灰色和木色,简约的设计风格,运用了许多自然元素为整个空间增添了温暖。
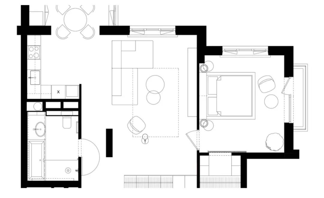
平面图
▽
极简的设计中隐藏着丰富的装饰细节,客厅灰色的布艺组合沙发,搭配黑色边桌,大大的投影很有特色给人一种酷酷的感觉,高逼格开放式家居设计,设计流动出一种随意的自然美感,做梦都想要的家。
这个面积67㎡的住宅,空间不大,软装设计在空间中,舒适的配色,突出空间的艺术风格,从而打造空间的个性魅力,实用和优雅双收。
厨房运用了大量的木质元素,自然且舒适。
主卫选用灰色的瓷砖铺贴地板与墙面,卫生间内不同材质混搭刻画出肌理、明暗的变化,透明的的镜柜,完美实现功能与美感的结合,盎然有趣。
卧室透过空间的虚实处理,用格栏做门,让灯光尽情穿梭在内外区域与各处的木质结构搭配,十分和谐,既有延展过渡,又有细节叠加,衬托出丰富多元的空间情感。
PROJECT TEAM
FORM Bureau是一家位于乌克兰基辅的室内设计工作室,由建筑师Victoria Shklyar和Olga Antontseva于2004年共同创立,主要从事私人住宅的设计室内,鲜明的简约是她们的标志性风格。
其他佳作
本文来自微信公众号“亚太室内设计”(ID:ytsnsj)。大作社经授权转载,该文观点仅代表作者本人,大作社平台仅提供信息存储空间服务。










