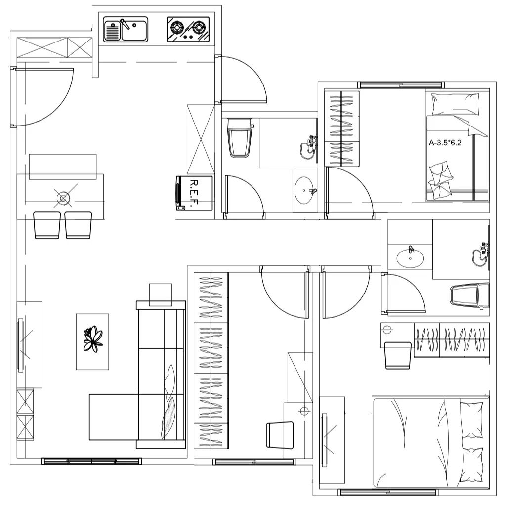
基本信息
房屋面积:66㎡
房屋户型:3室2厅1厨2卫
装修风格:北欧风
户型图
业主需求
1.不喜欢复杂的装修风格,以简单舒适为主。
2.喜欢乡村风的温馨和北欧风的简单惬意
3.收纳要多
玄关
悬空的白色鞋柜,方便放置鞋子。配电箱隐藏在鞋柜里面。巧用房子原有的梁柱,将厨房分隔开。
为了扩大使用面积,将厨房、餐厅、客厅归为一个区域,整个空间视野更加开阔。
客厅
蓝色背景墙搭配苹果绿沙发,整个空间清新自然,活力橘抱枕搭配,整个空间一点也不沉闷乏味。
沙发座椅可以往前滑动,让屋主可随性调整坐姿,下班后舒适悠闲地坐卧在沙发上看电视。
避免家里茶几堆满杂物,在挑选茶几的时候,特意挑选带有储物功能的茶几。
随性摆放的绿植与环绕四周的温润实木气息,轻松筑起令人放松舒适的生活场景。
主卧
将客厅的天空蓝沙发背墙延伸至床头墙面,为简约空间增添一抹亮眼的视觉焦点。
小茶几做为床头柜,方便放置手机、闹钟、眼镜等常用物品,也可摆上一盆植栽增添绿意。
梳妆台大小适中,圆角设计即使摆放门边也不怕撞伤,活动式的镜面可直放、横摆或收起,依个人喜好随心所欲调整。
次卧
次卧采用子母床,将两张床上下合并,平常用不到时可将另一张床推进床底,需要时才拉出使用,让空间更清爽。
床底配置3个抽屉可存放棉被、毛毯或冬季衣物,兼具收纳同时灵活运用节省空间。
书房+衣帽间
本文来自微信公众号“亚太室内设计”(ID:ytsnsj)。大作社经授权转载,该文观点仅代表作者本人,大作社平台仅提供信息存储空间服务。










