保持平衡和愉悦。
Selina在北京生活多年,是爱犬之人,曾收养了三只流浪狗。
去年,她留意到一所占地3000多平方米的废弃小学,于是找来好友、身为建筑师的徐小萌,希望将这个地方改造成一个有草地、院落、民宿的小社区。
▲
改造前后
施工期间,刚好碰上北京疫情,他们在工期紧张、改造受限等问题上达成了共识——保留原建筑面貌,不变更房屋结构,通过一种相对“轻盈”的设计手法,将“微型院落”嵌入其中。
原有老建筑及其红色的瓦屋面,在麻绳的间隙中若隐若现,随着人的位置与视角的变化,呈现出不同观感。从屋顶处继续向外延伸的麻绳,则构成入户门廊的一部分。
四排砖木瓦房划分成9间客房,每一间客房通过院墙隔离出一个小院落,绝大多数客房还有一个探入院落的“玻璃盒”,承担泡澡、茶座等独立的小功能。
所有套房的客厅都有一个又窄又高玻璃门,黄昏时,光从窗流入,充盈整个客厅。室内某些不经意的地方也设立着一些竖条状的窗,方便人们看到室外的景致。
在“米棉”的公共区域,有一处2000平方米的大草坪,狗狗们一到,就会兴奋地到处跑。Selina也会在民宿备着宠物饼干,她希望这个空间一方面可以让客人住着舒服,也是一个能让宠物享受到好的待遇的地方。
墟里的创始人小熊是土生土长的温州人,2018年,她带着团队进驻泰顺县徐岙底,联合五位设计师,对这个传统村落里荒废下的民居进行改造、利用。去年,她找来设计师张健,托付他了其中三栋古建的焕新任务,改造为民宿墟里。
▲“梅”、“柿”、“茶”
2022年2月,新空间落成,他们取屋前栽种的“梅、柿、茶”,组成了如今的乡野居所。
▲
徐岙底村景
徐岙村始建于1236年,几乎完好保留着几百年前的样子。青石板之间的缝隙里长满青苔杂草,行走于乡间,能看到古朴的院落,它们以木结构、石头墙或土坯墙为主,在一代代人用鹅卵石垒砌的道路两侧,“生长”了近800年。
▲
“梅”改造前后
“梅”的原建筑由三面夯土、一面木板墙组成,上下两层,共94平方米,在徐岙底村的民居中面积最小。被打造成“一户建”式的复式独栋客房。
夯土墙之余,原来的老木结构屋顶也被保留下来.原有的94平方米分离出起居、卫浴、卧室、露台四个功能区。
入户面的木板墙被拆除、改为通透立面,引进更多光线,强化温暖、宜居的空间氛围。坐塌一侧的加宽设计,也为三口之家入住提供了便利。
▲
“柿”改造前后
“柿”是其中最难改的。“柿”这栋既小,又独自面西(入户正对门直冲),且背部贴着山体和溪流。
建筑师“借”南侧和正面的空地分别做了扩建,让原本“方块状”的建筑,有了型态与功能的变化:南侧做了扩建,充盈室内空间,增加了庭院;正面扩建成入户门厅,增加缓冲区与玄关,调整入户节奏,提高了居住的仪式感。而缓冲区的顶部,也为原本面积不大的客房带来露台。
▲“茶”改造前后
“茶”是三栋中坐落在村子最里头的,实现了“共享客厅+茶空间+4间卧室”的新功能布局。
客厅部分,下沉式的设计拉进围坐者之间的距离,东侧植入榻榻米茶室,茶室三面均为格栅移门,敞开门即是山景。餐桌边的土灶也被保留了下来,兼顾备餐柜之用;另一侧的土灶则拆除,为楼梯处腾挪出空间。
对于第一次入住墟里梅、柿、茶的客人,如果要安排在墟里的一天时,设计师张健的建议是:“一人或是两人来,可以住‘梅’,独立、自由。空闲时可以去逛逛村落里的古建筑,另外,除了我们还有其他四位设计师分别改建了另外6栋,每栋的房间都不一样。如果允许的话,可以参观一下他们的房间。”
添加小编微信号: tototo02 了解更多前沿设计资讯
2022.7.18 最新启幕
“凝聚目的地精神,同时与地方文化长久共存”
全国唯一私人收藏酒店
2座明代官制古建、跨越500年
1825天匠心修缮
2000+徽史文献
200+收藏真迹
既下山·废墟咖啡
越是古朴,越能牵引想象与乡愁。抱着对历史的想象,对心灵故乡的向往,栖身于文郁堂,与山水为友,烹茶听松,回归文人快意生平,行程才有了答案。
擅长东方美学的既下山,向来追求与当地建筑的融合程度:大理古城店是由白族当地民居改建的,沙溪是收了三间传统院落,重庆则是改造了民国时期的美国使馆……
这次既下山又给足我们惊喜,将目光放到了颇具诗意的徽州!
黄山脚下的皖南古村星罗棋布,呈坎是历史最悠久的那一隅——始建于东汉末年,距今已有1800年历史。
它不仅是国家5A级古村落景区,还被誉为“国保之乡”,拥有国家级重点保护文物22处,有着中国独一无二、现今保存最完好的明代古建筑群。
全新揭幕的【既下山·文郁堂】就藏身于此,直接将酒店搬进纯正的明代宅邸。
而这间大作的诞生,并非一蹴而就。
早在17年前,文郁堂的主人郁建明老师购得这座明代建筑,文郁堂之名也来源于其偶然购得的一块古匾额,这个名字既与郁老师有缘,又有文化葱郁、蓬勃、生长之义,正与既下山的品牌理念不谋而合。
历经1825天匠心修缮后,既下山·文郁堂终于正式启幕,不仅让明代建筑重回大众视野,同时也以「新地方志」的形式延续徽州文化。
值得一提的是,这家虽然只有8间房,但是目前全国唯一的私人收藏酒店。从文人书画到精致器皿,文郁堂藏品涵盖千余件,睡一晚就能看尽近千件稀世珍品。
图为素纸/银勾套房
跨越500年,修旧如初
住进真正的明代宅邸
浓厚的人文底蕴造就了不朽的徽派建筑,既下山·文郁堂坐落在呈坎钟英街,毗邻著名的江南第一祠“宝纶阁”,这也是是徽州级别最高、保存最完整的明代宗祠,由此可见文郁堂的选址眼光有多独到。
酒店主体是两座明代建筑,均是国家重点保护文物,前身为新安中医世家及徽州盐商府邸,距今约有500年的历史。
了不起的是文郁堂的古建空间,如同徽州山水里自然生长而出,与想象的文人雅居达到了完璧般契合。无论我们是否了解徽州、了解古建,这两座明代建筑所释放的幽朴之美,都将触动到每个人的精神净地。
而如此恰当的尺度背后,是长达五年的匠心修缮。
文郁堂的修缮工作由获得“自然建造·Architecture China Award”青年探索奖获得者王灏“操刀”,张钊团队负责整个项目全面精工落地,循徽州文脉、承明式气度。
正如《冯骥才艺术谈》中提到的古建修复理念“修旧如初”那样,国保建筑本身是不可复制的,“对历史遗产原真性的强调,不去刻意做旧”,是主创团队的共识。这才造就如今浑然天成、出世不俗的文郁堂。
全国唯一私人收藏酒店
从家具到字画,稀世藏品涵盖千余件
北宋繁昌窑白釉执壶、南宋将乐窑青釉盏托、南宋福清黑釉盏
作为全国唯一的私人收藏酒店,2座明代古建及其故事本身已是珍贵的收藏,更无须说文郁堂内从家具到字画,无一不是主人郁建明老师的收藏臻品。
文郁堂藏品涵盖千余件,以明式家具、文人书画、精致器物、盐商文献为主,多是来自明清民国时期,最早的也可追溯到汉代。
清代子冶款刻风竹诗文紫泥合欢壶/五代白釉唇口大梅瓶
件件皆是珠玉之作,传递着古雅之趣、岁月之美与徽州文脉。如果物件会说话,那么在文郁堂的每件藏品,都是岁月的叙事者。
明式黄花梨木座椅(共四把)
家具本身就寄托着主人的情怀理想,所以酒店内的收藏家具也均是明式的上等之材,既显古朴之风,又蕴含文人的风骨。
字画、信札、诗稿以明代、晚清民国时期的文人作品居多,具备极其丰厚的艺术深度。漫步画廊间,你会看到翁同龢、吴昌硕、张充和等许多耳熟能详的名字,仿佛与文思精神来了场时空对晤。
不仅室内空间被藏品填满,院内草木也无一不是收藏级别的。
老桩野梅树、百年野生绿萼梅、野生紫藤、松树...均是遍寻徽州才觅得的神灵之作。在文郁堂,一草一木各具姿态,给人以诗意栖居的心灵滋养。
仅设8间房
古朴却饱含精品质感
既下山·文郁堂仅有8间客房,均以古代文人八雅“琴棋书画诗酒花茶”为灵感而命名:知音、执白、银勾、素纸、曲生、暗香、春露平仄。
8间房分别分布于前后二座明代古建内,保持既下山一贯的精品质感。
除收藏级家俬以外,房间内其他用具是王灏专为文郁堂而定制设计,门窗、栏杆、板壁用材均为名贵“老白果木”,其纹理或隐或现,色泽不静不喧,质感温润坚固,是明清权贵的品味首选,这也与既下山一贯的稳定出品不谋而合。
就连门窗的雕花也是由七代木工传人“双喜”历时2年手工雕刻而成的。
经过反复打磨,客房最终呈现出的不仅是家具之美,更是精神和思想凝聚成的一种清雅气质。
回到房间,仿佛回到了自己的“精神领地”,静思、安眠、尽情享受现代桃源的安宁。
修复古建的同时,设计师以谦逊的姿态介入其中,为的就是尽量保留古建的“原汁原味”。
从消防、采光、保暖、净化到水循环系统,现代设计手法谨慎地融入到空间中,精神愉悦的同时,也更加宜居。
令人意外的是,客房内的洗浴空间则均是加建。
整体采用了代表着中华工艺与审美至高境界的古法水磨沙工艺,并特别邀请了曾指导「观复博物馆」水磨沙工艺的台湾教授操刀,最终呈现出明亮开阔,纯粹素雅之感。
虽然跳脱出了酒店的古朴,但在观感上却十分和谐相融。
古时的文人生活,离不开一方院子。走出客房外,可选择在庭院与茶轩间小坐。
水池之上的茶轩,是主创团队寻遍整个徽州,寻到的气质最合的明代洪武年间“学堂”,大量使用珍贵老材料1:1复刻于此,从而营造出文郁堂气质的书房、茶室。
古今呼应的「废墟咖啡」
徽文化范本制作
在钟英街文郁堂的对面,有一座完全重建的三层建筑,与文郁堂形成了一个“古今呼应”奇妙的画面,设计师将它命名为“废墟”。
这座容纳了咖啡厅、餐厅、酒吧、观景台以及大堂等功能区的「废墟咖啡」,由王灏基于徽文化元素设计,整体宛如一件以徽州为底色的当代艺术品,足以成为徽文化当代建筑表达的范本制之作。
步入咖啡厅,你会在空间的“破碎感”中捕捉到无数富有生命力的作品。
新黄山画派代表画家许振专门创作的两幅作品显眼又具有标志性,二楼亦有许振之作;转入“废墟”之墙背后,则是国内著名的金工艺术家汪旺老师为文郁堂创作锻打的一副金工作品《物NO.6》。
来到二楼餐厅,就能看到设计团队对徽派建筑梁柱样式的复原再现,以及对传统“四水归堂”制式的借鉴。
既表现出强烈的力学美感和乡愁属性,同时巧妙地为建筑自然采光,实则妙哉~
虽然在文郁堂的各个空间,都可以一窥青山水隐之景,但行至三楼,从天台可尽览呈坎全貌、远望宝纶阁,一幅完整的徽韵画卷方才徐徐展开。
项目名称:既下山·文郁堂
业主:郁建明|邓芳
主创设计:佚人营造|王灏
落地呈现:饰家|张钊团队
灯光设计:Fukumitsu LD照东光绘|朱理东
家具制作:程家乐
金工制作:旺鼎|王襄赐团队
软陈花艺:斛生记|麦婷
园艺指导:溢松院丨樊景森
项目摄影:雷坛坛建筑摄影
野在山川 隐世聚落
院落式野奢度假酒店
独坐幽篁里,弹琴复长啸。
深林人不知,明月来相照。
——王维《竹里馆》
这间名为「YAZA野在山川」的酒店,是设计师谢柯和赵扬,携手一众老朋友历时三年打造。
他们以内敛谦逊的姿态,取“设计后退”的手法,采用在地材料,让建筑融化于自然山水中,仿若自成一脉的避世村落,柔软温婉。
睿智的鸟会在暮色中起飞,正如诗意的瞬间,往往是在普通的日子绽放。奔赴山野,仰望星空,最糟糕的不在于这个世界不够自由,而是在于人类已经忘记自由。YAZA野在山川,探索生活的其他可能,心若能在迢遥的风景中徜徉,灵魂便可无限延伸。
院落式野奢度假酒店
一
I.
隐匿山野,本真自然
The beginning of the story
理想的诗意村落
Ideal Poetic Village
YAZA野在山川位于浙江省湖州市安吉县山川乡大里村,地处天目山北麓,境内群山连绵,竹林葱郁,如临仙境。
YAZA是我们在浮躁的当下,对未来理想生活的描绘。在与自然接壤的村落空间里,感受流动的丰盈。
一
、
II.
梦想山居,隐奢院落
The dream life in the mountain
作为国内少有的院落式野奢度假酒店,YAZA野在山川的高级感源自人在空间里,完全拥有的本真与自在。每个院落都是一个独立自由的世界。
独享茶园、竹海、森林,植物花草种类丰富,大自然中人与万物和谐共存的美好景象如甜而不腻的蜜汁流淌而出。非常适合追求品质生活的城市旅客和家庭前去亲近自然、疗愈身心。
静动相宜的院落式度假
Courtyard Style Resort
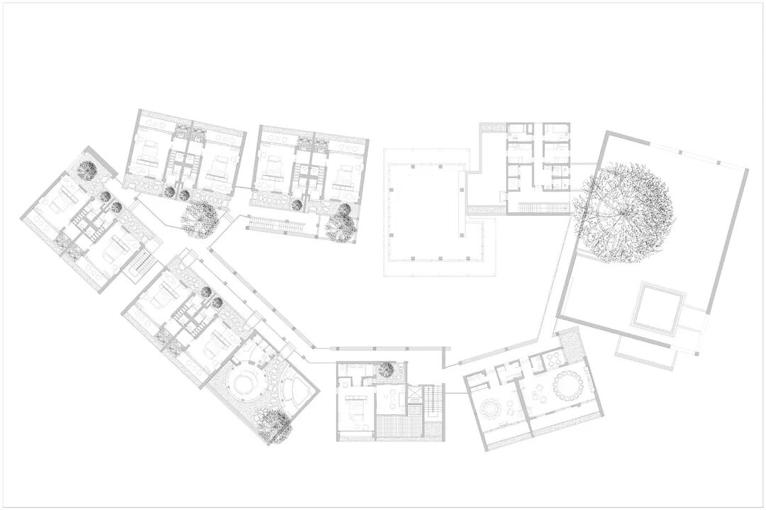
YAZA野在山川酒店总占地面积40亩,建筑面积6000平左右,共60间客房。
分为4个区域(望山、听岚、隐溪、水镜),由12栋院落组成。每个院落,4个房间,1个公共客厅。公区有餐厅、酒吧、会议室、游泳池、泡池等众多活动娱乐场地。
小院落各具特色,独立、私密,公共客厅提供家人一起做饭、聊天、唱歌的复合空间。每间客房都是“看得见风景的房间”。
·客房·
·公区客厅·
·咖啡厅&休闲吧·
·餐厅·
·泳池·
·瑜伽馆·
·雪茄吧·
一
III.
人生海海,山山而川
The meaning of daily life
日常之间,生活以外
Treasure the Present
在特定的意义上,山野美学的丰盈是完整无缺地包含于角角落落的。在微不足道的细节里,发现属于野在山川无限、璀璨的独特瞬间。
项目名称:Yaza 野在山川
酒店地址:安吉 山川乡
规划&建筑:赵扬建筑工作室
设计团队:赵扬、武州、黄楚阳、周笃创、凌寒、白皓文、叶俊成、苏展、刘桔、何国耀、石崇鹏、周盛遥、刘心如、郝心怡
室内&陈设&景观:尚壹扬设计
设计团队:谢柯、支鸿鑫、杨凯、郑亚佳、刘晓婕、杨宏、向亚丽、李茜、黄湘渝、张琳、龙娇、鄂兰秀、李天燕、胡疑雪、孔祥喜、梁润、潘越、熊剑桥
VI设计:NI创意 吴桐 刘雪 张微微
项目摄影:雷坛坛 / JLAP
项目视频:向蜀程
撰文/排版:STUDIOCLIP
治愈风景
房间是人的最休闲之处,在使用当中更应当以人的使用体验为衡量标准。蜚声在天花板处巧妙安置了一块浪漫的水波纹,与窗外的洱海相互呼应。在点点闪动的光影浮沉与流动间,提升了空间质感,增加了居住者的趣味性。
空间是交互的容器,为人群的往来提供场地、诉求、情绪以及遐想。临海而坐的酒吧与餐厅,则是最优质的表达载体。随着空间秩序铺排的线型灯、投射灯,在点位中映射下斑驳光影。
木体是建筑的骨架,将整栋楼支撑起来,撑开视野广度与明暗空间。用石头搭建出一整面墙,原始风情与野奢趣味就此匹配。
头顶的镜面大概是最为现代的材料,通过光影明暗折射出更宽广的视觉效果,在完成室内外的景致投射的同时,构建出全新的空间层次,为人群的互动与交流做好准备。
迷离灯光与柔和月光的交织,氤氲出朦胧浪漫的悠闲氛围。玻璃镜面与粼粼海面的折射,营造出时空交叠的虚拟质感。
光影攒攒,人影绰绰,是梦,或似梦,反倒没必要确定了。浮生半日,沉醉就好。
项目名称|树与墅民宿
项目地点|中国 大理
建筑改造|蜚声设计
室内设计|蜚声设计
软装陈设|蜚声设计
主案设计|文志刚
设计团队|姚尧梦越、黄楠
软装团队|王晨曦、胡建美、苗慧
设计面积|560㎡
项目文案|陈芊
项目摄影|欧阳云-隐象建筑摄影
Fusion Design 倡导用简单的艺术,设计有能量的作品,创造独特的趣味性与可能性。我们从历史、文化、艺术等方面,吸取灵感元素,创造出巧妙平衡于多元风格的融合空间。我们聚焦于全球化视野,不受具体风格的界限,通过生活的美学来拓展各种新的可能。以地产、精品酒店与高端私宅为聚点向外辐射,以设计的无限创意与视觉艺术,传达不一样的生活方式和美学理念。
文志刚 Josh Wen
蜚声设计创始人兼设计总监
项目名称:成都右岸天鹅湖精品酒店
设计方:We&Arch吾和建筑事务所
设计时间:2019年03月-2021年03月
建设时间:2019年12月—2021年08月
主创:张园华,张琪, 钟雁萍
设计团队:袁竟,漆巧,蒋杰,陈莹,赖远江,郭杨,杜青松,雷淋,陈虹宇,陈强
设计管理:朱强,李勇
项目地址:四川省成都市温江区寿安镇
建筑面积:3000㎡
摄影版权:WOHO/ We&Arch(单张照片已注明)
文字:张园华,钟雁萍
景观:张琪,钟雁萍,陈莹
灯光:王晓娟
客户:四川寿安天鹅湖实业有限公司
材料:质感涂料,毛石,竹子,沥青瓦
成立于2015年的阿穆隆设计工作室,主要聚焦于自然环境中的建筑,乡村和城市建筑的更新改造,室内消费空间升级等设计议题。他们尝试保持自然中的多样性存在,保护好地域差异,用建筑的手法,诠释自然、物、人三者之间的互动关系,民宿部分,先后打造了小也山谷、夜阑星舍等项目。
基于基地两面环山,山腰间长着郁郁葱葱的野树林。他们将原有四合院肌理保留,然后用一个大的板式屋顶将四个房子连接到一起。每间房的屋檐被拉长,方便游人在廊下安坐、观景、休憩。
天井中设置了泳池,泳池一小部分掩映在楼梯之下,路过泳池可达屋顶。屋顶东面和南面与山腰间的野树林相融,露台为首层争取到一丝阴凉。进入室内,屋顶上的小天窗使屋内光线充足。
▲拥有百年历史的长乐林场
在距离杭州市区大概40分钟车程的径山镇,有一片拥有百年历史的种植林场——长乐林场,林地面积超过1500平方米,森林覆盖率为87.2%,年平均气温16.1℃,植被的颜色跟随四季变化,在这里能看见自然原始而纯粹的模样。
林场所在的径山镇被称作“禅茶文化胜地”,江南五大禅院之首的径山寺就在这里。自然与禅学的结合,让长乐林场拥有天然的治愈力。
2018年,陶磊第一次来到杭州的余杭区勘察。9月份的杭州仍是酷暑,气温较高。行车路上大家还聊得热闹。但一进入林间,每个人都不自觉地沉静下来。
郁郁葱葱的树,本身就具有视觉的治愈力,建筑师依照树林山地的起伏,沿地势建造了15座独栋房屋,一座座拔地而起的房屋就像生长于林中的树木,低调而恰好的“自然感”,正是陶磊建造语言的精妙之处。
“这些特殊的设计都试图让人更好地感受这里的自然、融入这里的自然。”正如陶磊的自述,他希望来到不是居·林的每个人,都能放空身心,在轻松的状态下看见一个风平浪静的世界。
在饮食疗愈上,道家讲究人禀天地之气而生,啖精食,饮露水,浅尝辄止。酒店餐厅被山水风景包围,将径山茶、石斛、林间山珍、竹林鸡等在地特色食材进行烹饪,以清淡纯粹的风味和宁静的用餐氛围,带领人们回归自然、体味自在。
▲餐厅与茶室
除了饮食疗愈,饮茶也是净化身体与心灵的疗愈之法,不是居·林特别打造了茶室空间,听着泉水潺潺流过的声音,阅金经,品香茗,在悠远茶香和无尽诗意中,让内心抵达“自然即我,我即自然”的境界。
▲在酒店体验音钵疗愈、静心抄经
如果想要更专业的沉浸式疗愈体验,可以参与酒店疗愈师的一对一音疗课程。
45分钟的音钵深度睡眠相当于夜间3.5小时的深度睡眠。人体70%为水,音钵振动时,身体组织和谐共振。深度睡眠的同时,舒缓压力,缓解疼痛,全面唤醒身体自愈力。
远远看去,阿纳迪安静地伫立在上海苏州河沿岸,两幢建筑外观呈现了“太极阴阳鱼”的形态,以独特的建筑语言阐述了“Anandi”的含义——来自梵语,代表“无限喜悦的心境”。这是Healing旗下中国第一家城市养生酒店。
▲室内空间的能量石、喜马拉雅盐灯、大地之床
步入室内空间,即可闻到淡淡的香气,宛若走进了一座森林中的花园。333间客房分布在酒店空间内,设计师用能量石、喜马拉雅盐灯、大地之床等元素,营造了一个如同自然磁场般的室内环境,熏香充分释放着负离子,让人在一呼一吸之间,感受自然之“气”。
▲颂钵疗愈
每一位入住的客人,都需要在酒店入住登记处完成一次“阿育吠陀体质检测”(阿育吠陀Ayurveda是“生命科学”的意思,Ayu是生命长寿的意思,Veda是知识或方法的意思,阿育吠陀是现今地球上最古老的整体健康保健体系)。
为了打造舒适睡眠,酒店房间在配色、家具和床品的选择上都做到细致,室内以原木和淡绿为主色调,点缀棕红木饰面和深灰石材,所有的家具都是订制的,脚下的地板是纳米能量地板,用UA远红外线材料打造而成,可以促进血液循环,加速新陈代谢。
房间之外,酒店还安排了很多疗愈体验活动,比如跟随印度瑜伽老师在橄榄树下练习瑜伽,或是在专门的颂钵工坊里平静心灵,在冥想工坊放松精神。
在日本拥有高人气和好口碑的星野酒店,近几年在亚洲掀起了一股“日式下榻美学”的风潮,当人们听说星野把中国大陆的第一家酒店开在天台山时,就已经非常期待酒店落成的样子。
说起天台山,这里是佛教天台宗的发祥地、道教南宗的祖庭所在地。海拔约 1200 米群山围绕的山谷间,分布着许多寺院道观。
▲建在山野间的天台山嘉助酒店
浙江的山野风景温驯而宁静,酒店建筑所在的海拔在800米左右,在群山围绕中蕴藏着“佛宗道源,山水清秀”的建筑语言。
▲酒店的莲花喷水池
酒店外墙是典型的江南建筑风格,白墙黛瓦,庭院相连。在户外,中国工艺美术大师朱炳仁特别设计了一座莲花池,以佛教教花致敬天台山的禅修文化。
漫步至酒店二楼,可以在禅意书吧静下心来阅读,这里有千余册《四库全书》。室内墙面的挂轴也独具文化魅力,有源于佛教、道教的精研之作,还有与本地多态文化相连的作品——如关联着当地济公文化的济公像。
在佛教用语中有一个词是“六根清净”,意思是眼、耳、鼻、舌、身、意六种感官,都可以看到、听到和得到一切愉快的感受,达到无烦无恼的境界。
依据两大不同景观类型,客房分为远眺青山的“山景房”与面朝内院的“庭院房”。山景房可以眺望天台山地区海拔 1200 米的群山,看山中的日升月落;庭院房则独占中式庭院之景,草木点缀在白墙黑瓦间,仿佛一幅幅随四季变换的水墨画。
▲嘉助套房拥有观景露台
为了让住客体验静心的禅修生活,酒店还安排了许多活动。早上8点到8点半,可以参与修心八段锦,八段锦是中医祖先用形体活动结合呼吸提出来的健身方法,在舒展与呼吸相配合下,感受轻缓动作带来的内外放松,在空气清新的早晨净化身心。下午4点到5点,可以体验宋代点茶,以茶盏为镜,观杯中涟漪,放空身心感受茶的禅意。
入夜之后,还可以参与晚间8点的冥想,在禅心冥想室听着舒缓的音乐、保持舒适的坐姿,让压力烟消云散,自然就能睡个好觉。
除了在酒店内体验修禅之道,周边30分钟车程内还有许多地方值得一去。佛教“天台宗”的发祥地国清寺,寺内的弥勒殿、大雄宝殿、三贤殿、鹅字碑都是珍贵的历史建筑遗存。
- END -
精彩回顾
▲季裕棠 / 如何理解对家庭生活以及纯粹住宅精神思考?(30分钟)
▲全球TOP3酒店设计公司:CCD掌门人郑忠谈顶级设计 (16分钟)
▲琚 宾 解析东西小院 / 淡然无极而众美从之(7分钟)
本文来自微信公众号“云想设计美学”(ID:Yunxiang_Design)。大作社经授权转载,该文观点仅代表作者本人,大作社平台仅提供信息存储空间服务。










