中国国际建筑装饰及设计艺术博览会简称设博会(CIDF),诞生于2005年,每年举办一届,现己发展成为在设计师选材、时尚生活方式、空间艺术设计展览、国际环艺创新设计大赛、行业品牌推荐等领域最权威,国际化程度最高的年度设计盛会。
目前,2022第十八届设博会正在火热进行中,组委会将充分利用设博会、中装协环艺分会、新家网等官方网站和环球装饰设计、设博会等三个公众号及短视频新媒体矩阵,同时联合新浪家居、中装新网、腾讯家居、网易家居、凤凰家居等权威行业媒体,对历届部分优秀华鼎奖获奖设计师、获奖机构及设博会嘉宾进行专访并推广,共同探讨设计行业的经营现状以及未来发展趋势。本期我们分享2022设博会华鼎奖获奖设计师袁慧星的设计作品。
鸢之都-潍坊顶层复式232m²雅居-设计汇报
项目坐标:山东潍坊市
项目面积:232m²
古人讲圆融,通达,追求天人合一的人居理念。本案的设计便以“天人合一”为主题,在营造天人合一的自然气氛里,细致雕琢的每个细节在满足采光充足、色调明亮之外,还运用了流畅的线条对家中每处空间的融合之处进行点缀。工艺的至纯至真,讲求实用,不同的家居设计对应这一“音乐之家”每一位成员的个性追求,展现了居者的个人情绪与自我表达。貌似不经意的搭配之下,一切又如浑然天成般光彩夺目,使人无论何时回到家,总是能领略到家的温馨、激情与浪漫。
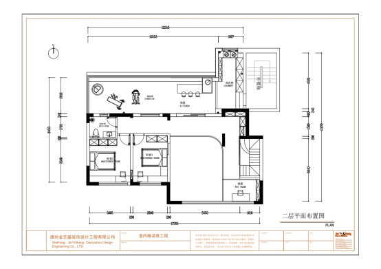
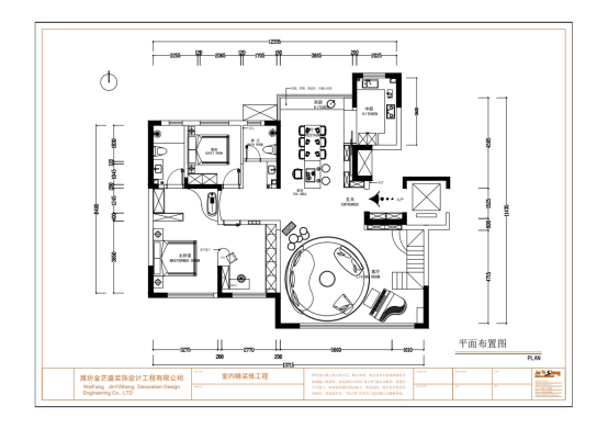
平面布局说明:
本案房子有两层空间,一层由客厅、餐厅、主卧室、次卧室构成,二层为书画室、女儿房、儿子房、阳光房。
【餐厅】
餐厨与客厅一体相连,该设计扩大了视觉空间,同时便于家人间互动,增进彼此交流与沟通。小到绿植的摆置搭配,大至分区放置物品的考究,都彰显着每位家庭成员热爱生活的气质。华丽的金属吊灯如跃动的音符,一曲爱与美食的家庭乐章就这样欣然奏响,绵逸柔远。
【客厅】
由餐厅走入客厅,便能看到两空间相交之处的灯光,整面落地窗将都市景观融汇到客厅,带来自然天际的仰望与现代夜景的璀璨,搭配着犹如繁星点点的吊灯,梦幻而美好。
从客厅中摆放的各种乐器,不难看出居者一家对于音乐的热爱。午后晴空,居者可以坐在落地窗旁,边欣赏着窗外美景,边弹奏舒心的乐曲,而家中的每一位客人,便可以坐在环形的沙发中欣赏这一视觉与听觉交织的双重盛宴。
【二楼走廊】
二楼的走廊打破了传统设计的考量,放置了一个连接天花板与地板的书架,而向里走去,正是二层书画室。
【书画室】
书画室的设计采取了新中式风格,古典文化的韵味在传统元素和现代元素相互渗透、相互融合的家居空间里氤氲着,让人不禁想倚着窗户,小品一杯红酒,看一会书,又或者看看窗外的美景,尽情享受天人合一的散漫时光。
【主卧】
对于主卧,着重强调的是居者与空间、物品的关系及其所蕴含的意义和情绪。主卧整体采用统一的色调,白色薄纱与黑色地毯和轻奢压制的主卧大床相配,十分具有质感;浴室以一层白色薄纱消除与主卧的边界;办公区与化妆区正对着主卧大床,让居者在早上起床与夜晚办公时都能够得到便利。
【一楼次卧】
次卧以极简风格出现在我们的视野之中,以灰色调为主旋律,一抹绿色为点缀的房间仿佛在告诉我们精谧生活的本质在于超越现实之上的静谧,细细品味,慢慢休憩,积蓄停歇之力,为更好出发修整身心。
【女孩房】
女孩房的布置以大多数女孩无法抗拒的粉色为基调,并且在这个背景色之上,增加了一些性化的装饰、家居,比如月亮灯和紫色的边灯、小房子轮廓的抽屉,用强烈的反差效果打造出一种梦幻的少女感。
【男孩房】
男孩房也结合了居者对于动漫《火影忍者》的喜爱,以火影忍者挂画的橙色为主色调,房间也选用了白橙相间的颜色,挂画相得益彰。同时男孩房和女孩房之间的连体书桌巧妙的预留了一个可会面的隐藏小柜,两人作业之余,可以打开墙体上隐藏的柜门,聊尽今天的趣闻趣事。
【阳光房】
压轴出场的是阳光房,相信每一个看到阳光房的人都会被一眼吸住,精美的遮光帘、梦幻般的玻璃窗、健身器材、娱乐器材,青杉盈砖,每一抹春光都映照在房间里,仅仅是夏日的傍晚,坐在阳光房中望一望满天繁星,与天空融为一体,也是一种极致的享受。
以上便是本案的分享内容,每间屋子都诠释了居者的个人色彩,公共区域的精彩布置更是让人眼前一亮。看完后很羡慕这样天人合一、精彩纷呈的生活,如果你也喜欢这样的空间,不妨试着参考一下。
关于设博会
本文来自微信公众号“环球装饰设计”(ID:shebohuinews)。大作社经授权转载,该文观点仅代表作者本人,大作社平台仅提供信息存储空间服务。










