/142㎡旧宅翻新,重新定义家的样子,温馨、舒适、智能…

142㎡旧宅翻新,重新定义家的样子,温馨、舒适、智能…

这是一套面积为142平米的旧宅翻新案例,对于这间房子的主人来说,也许是取决于设计师如何在其中实现他们对于“家”丰富的想象力和审美实践。
                     
                             

图赏

                     
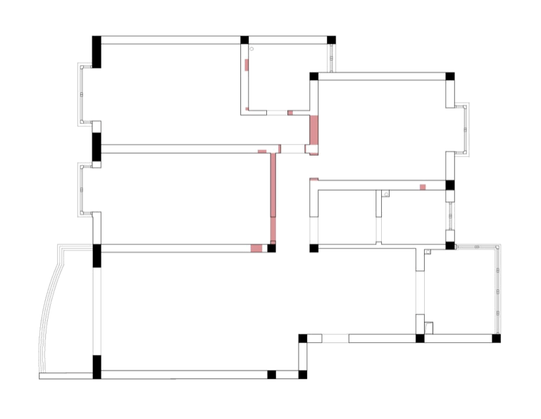
▲平面户型图                      
|  玄关  |                      
                         
                         
入户鞋柜与墙面脱离,在视觉上更为轻薄,南面的采光也可以通过柜体的镂空穿过。并且以矮柜的形式串联,保留了开敞的柜体区域,便于入户的钥匙和包包的放置。同时,矮柜的高度与背面钢琴顶面保持一致,无论从内还是向外观看,空间的呈现都是简洁而干净的。                      

                     
|  餐厨  |                      
                     
▲ 吧台灯光                      
每个人对家都有不同的期待,而智能家居一直是屋主长期以来关注的领域。不同于市面上绝大多数的设计,这次的“智能改造”不是简单的语音控制,而是契合于屋主生活习惯的场景适配。                      
                     
智能灯光、电控窗帘(百叶)、恒温恒湿系统、全自动清洁组合,这些隐藏的“智能助手”,便利了屋主生活的方方面面。                      
                     
在吧台区我们运用静电喷涂钢板工艺,将其开槽嵌入墙体内,通过智能设备创建相匹配的场景,点亮玻璃酒瓶,营造高级的氛围感。                      
                     
厨房PVC折叠移门,平时收纳在柜体之中,厨房和西厨吧台区域的视觉融为一体,开放或者封闭,是一个可以兼顾的轻松选择。                      
                     
厨房与客餐厅之间的过渡区域承载了双重职能,吧台以及西厨,可以满足屋主的爱好和生活需求,也是家中的小酒吧和咖啡厅。                      
                     
厨房电器都嵌入到了柜体之中,保持了空间的整洁有序。                      

                     
|  客厅  |                      
                     
左边的黑板墙也是鞋柜的侧面,充分利用好物体的每一个面,在保证空间简洁性和体块感的前提下适当附加一些功能。                      
                     
拆除阳台移门,利用“木盒子”做一定的空间区隔,既保留了阳台的原有功能,又使其嵌入至客厅整体。配合北侧开放式厨房的设计,贯穿南北,构造出更为丰富立体的空间层次。                      
                     
由于阳台的不规则形状,将其整切,保留了部分下沉区域,用来养些花草绿植,并采用线型灯光和间接光,烘托整个空间的氛围感。                      
                     
经过精密计算和反复加工,解决了激光电视和抗光幕布的距离问题,顺畅地连接智能设备。同时配合场景变化实现全自动开启和隐藏的地柜设计,使得整个空间更为干净统一。                      
                     
后疫情时代“家”或许需要承担更多的功能,我们也比任何时候都需要一个满足需求和抗风险能力更强的家。这不仅体现在生存的需要上,更体现在生活的意义上。                      
|  过道   |                            
                     
就任何一套旧宅翻新而言,首要的是进行空间的重塑和属性板块的分割,谱写出一条有趣的动线。                      
                     
客厅背景墙大量的留白,利用平面构成的方式,于墙体右口纵向开洞、斜切洞口,在大面积白墙中创造了气口,避免了佛像直视餐桌。                      
                     
本来依空间而造,解决结构问题而做的设计,在层叠的空间和白与木色的搭配中,顺势而为,源于结构又高于空间。同时为了使空间呈现更为神秘、庄重,配合迂回的动线设计,将佛龛放置在过道末端。                      
                     
为增加公共阅读区域,使走道动线更有趣,将次卧过道墙体南移,设计成开放书柜,增加储物空间的同时,也解决了入户对主卧门的问题。                      
                     
卫生间的长虹玻璃门,在多个朝向上为走道布置良好的采光条件。                      
                     
为了保证过道的采光,次卧的房门设计成了隐形的格栅门,贴上屋主购买的日本和纸,便是一间具备基本私密性的卧室。                      
                     
因为还没有孩子,次卧空间现在作为活动室和化妆间使用。                      
|  主卧  |                            
                     
卧室的设计为了呼应整体的设计元素,床背景墙用的是屋主喜欢的防水泥艺术涂料,配上胡桃木色家居,整体色调融洽且温馨。                      
                     
衣帽间收纳结构是宜家的系统衣架组合,相比衣柜使用上更加灵活。                      
                     
层板高度可以根据不同的需求组合,衣架组合某种程度上也减少了木板的使用量,降低甲醛的释放量。                      

                     
|  主卫  |                      
                     
主卫是柔和的灰色空间,增加了浴缸位置,浴室柜与镜柜解决主要的物品收纳,入墙式水龙头,带来简单明快的视觉感受。                      
|  书房  |                            
                     
男主人的工作间整体采用的是深灰色涂料,使屋主在这个空间办公更加专注和高效。                      
|  客卫  |                      
                     
客卫采取干湿分离的配置,简单的水泥台盆用白色柜体填补过渡缓冲的区域,私密与舒适都有了提升                      

本文来自微信公众号“亚太室内设计”(ID:ytsnsj)。大作社经授权转载,该文观点仅代表作者本人,大作社平台仅提供信息存储空间服务。