主入口透视
项目概览
建筑全景图
该项目为了将建筑融入城镇中,且与范围的环境保持一致。礼堂被设计师分为四个部分——舞台包厢、座位区、大厅、服务区——并采用了坡屋顶的形式以达到不同的高度及方向。这一操作既弱化了建筑规模,也自然而然地形成了建筑体块交错。
体块生成
设计师在参考了当地建筑的形式,以及调查了当地在有高差变化地形上的历史建筑,采取了结构中重叠的方式,在不改变历史背景的情况下完成了它的外形轮廓设计。
主入口透视
该建筑由红色熟料砖建造而成,铜屋顶是圆形的,既呼应了该地区传统的陶瓷文化,也将建筑与周围建筑的色调融合在一起,采用了当地特有采石场砂岩的颜色,用在了场地的不均匀性的石基上。该项目探索了不同形式的砖表达的可能性:格子、砖、梁及声学构件等
立面局部
从室内望向窗外
在建筑内部,不同的空隙、开口和光源也都清晰划分了四个建筑外部体量,区分了礼堂的封闭空间的和相互连接的入口区域。
室内透视
柔和的光线透过陶瓷格子,洒落在砖墙上,在一天中随时间的变化营造出不断变化的氛围。其中镶嵌的木结构引导人们的视线转移到窗外的景色上。在夜晚,陶瓷格子和窗户中透出的光线也向人们展示着它作为表演场地的中心地位。
剧场室内
建筑围绕着剧场主厅及其不同层次的交通和入口进行组织。大厅有可容纳224名观众的座位,包含了在不同区域但却连续的观众座位:一个位于平缓倾斜的座位区,一个连接大堂和一楼的倾斜平面,以及楼上的挑台。都可以全方位地看到剧场的舞台。
建筑模型
总平面图
场地平面图
各层平面图
立面图
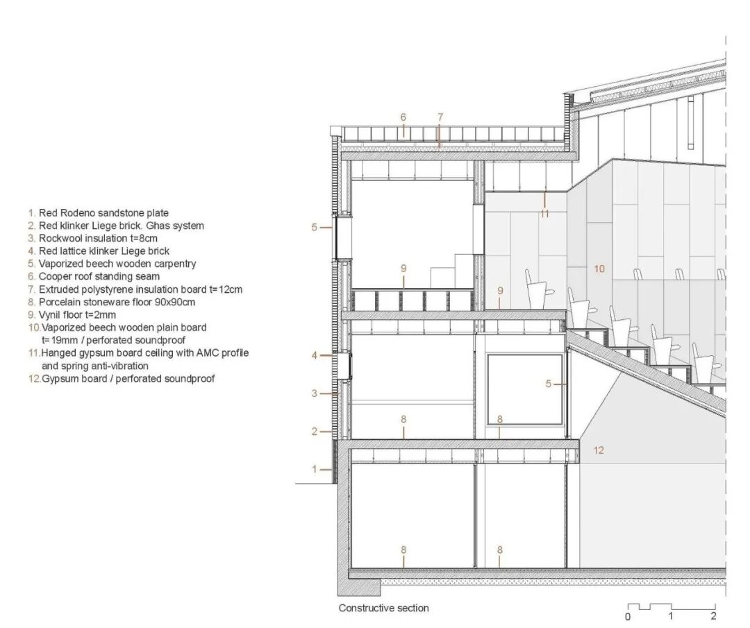
剖面图
结构大样图
建筑面积:1.034,40平方
合作者:Pilar Giménez、Marta Aguado、Irene Arrieta、Clara Ordovás(建筑师)
工料测量师:Gabriel Fraj
结构设计:José Ángel Pérez Benedicto
工业工程师:Sergio Torné Darriba
摄影师:Rubén P. Bescós
END
公众号文章仅供内部交流,版权归原作者所有
如有部分权属不清导致的侵权请联系我们删除
本文来自微信公众号“青年建筑”(ID:i80arch)。大作社经授权转载,该文观点仅代表作者本人,大作社平台仅提供信息存储空间服务。










