*图片来源于网络
充满仪式感的景观廊道,郁郁葱葱,似清幽别院,以优雅的欢迎姿态,引人入胜。目之所及,大尺度的楼梯“攀附”着大面积的落地玻璃,宛如活物,置身林中,蛇形而上。
大面积柜体消解庞大的墙面体量,使散厅空间紧凑却不拥挤,凭借外景引入交流空间,让莅临此处的都市人享受一刻清闲。
海鲜岛上方天花在色彩上与周边形成视线差,黑色基底营造深渊感,设备体块从顶部错落倒挂,光线集中于吊架与海鲜池,目光由此聚焦。
徐记海鲜老店照片被用作装饰画置于墙面,既是企业文化的传承,也是情怀与现代的完美交融。定制的煮茶台和茶椅以红色为基调,搭配洁白的花艺瓶插和同色系茶具,满足商务宴请客人的品质需求。
光影、自然、摩登通过艺术摆件、花艺摆台、抽象墙画等形式融入空间,赋予观者丰富的艺术体验,令“食”不止步于“味”。
食不止于味,也不会止于快节奏的都市生活。适度放慢脚步,踱步星月为灯的青石小路;晨钟暮鼓,去体会饮食中更多的滋味和细节。来此间小聚,赴席中一餐,文火五味细烹,盘中红尘调味,寻一味芳华,待山海徐来。
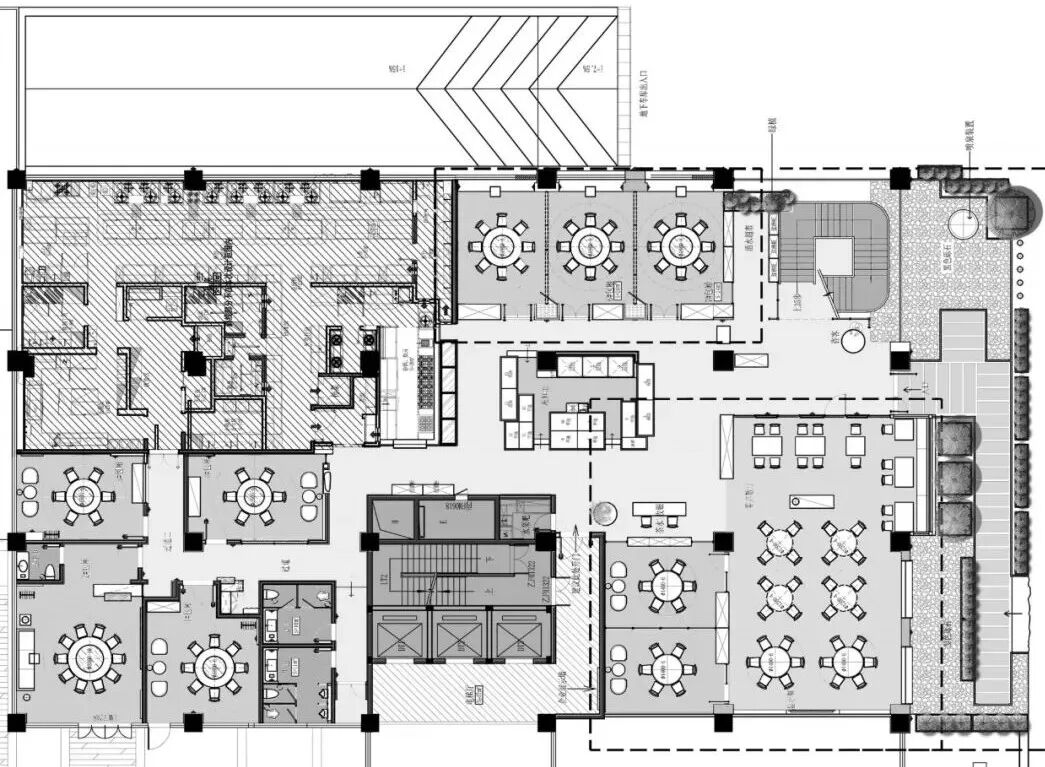
平面图
项目名称:徐记海鲜深圳科技园店
项目完工:2022年6月
项目面积:1430㎡
设计团队:蒋建宇、董元军、高烽、楼婷、柳永良、汤宇宁、陈天宇
项目地址:中国 · 深圳
摄影:方块
关于[大相设计]
[大相设计]1999年起步杭州,团队专注于林泉美学语境下的精品餐厅、酒店、文化性建筑的空间、陈设及景观设计的实践和研究,追求东方文化背景下的空间意境表达,强调空间与环境的交融,创导美学和商业的平衡。
设计理念:因借林泉 师法自然 回归 沉静安宁。
关于设计师 [蒋建宇]
大相设计 创办人
中国美术学院 艺术硕士
部分荣誉
·2022 Restaurant & Bar Design Awards-Shortlist
·2021 International Property Awards 亚太区优胜奖
·2021 DNA Paris Design Awards大奖(餐饮空间类)
·2021 London Design Awards银奖(室内设计-国际招待类)
·2021 FX International Interior Design Awards入围(餐厅与酒吧类)
·2021金腾奖年度空间大奖(餐饮空间类)
·2021第十九届国际设计传媒奖金奖(休闲空间类)
·第九届Best Design Award最佳设计大奖(餐饮空间类)
·第十八届《安德鲁马丁国际室内设计年度大奖》
·中国国际设计艺术博览会2009年度资深设计师奖项
·金堂奖2013年度:十佳餐饮空间设计、 十佳酒店空间设计、十佳别墅设计
·2014年度北京及上海最佳餐厅之一
本文来自微信公众号“设计之旅”(ID:designtrip)。大作社经授权转载,该文观点仅代表作者本人,大作社平台仅提供信息存储空间服务。










